

- Prix
- 398 750 €
Maison neuve • Argenteuil (95)
- Nom et prix
- Terrain à bâtir Argenteuil (95100) • 398 750 €
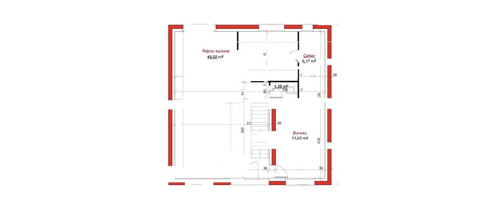
VENTE d'une maison F6 (110 m²) à Argenteuil IDÉALEMENT SITUÉE - MAISON 6 PIÈCES NEUVE À proximité de la gare, Maisons Balency Pierrelaye vous présente cette maison de 6 pièces de 110 m² et de 235 m² de terrain avec vue sur jardin idéalement située dans Argenteuil (95100). Elle inclut cinq chambres, une cuisine et deux salles de bains. Cette maison possède 2 niveaux. Elle est neuve. La maison se trouve dans un secteur convoité. Tous les types d'établissements scolaires (maternelle, élémentaire et secondaire) sont implantés à moins de 10 minutes à pied, tout comme trois crèches. Niveau transports, il y a la gare Val d'Argenteuil dans un rayon de 1 km, plaçant la maison à 15 min de Paris en transilien. On trouve une bibliothèque, des commerces, des boulangeries, trois supermarchés, des boucheries-charcuteries et un bureau de poste dans les environs. Son prix de vente est de 398 750 €. N'hésitez pas à prendre contact avec Christophe TALAMONI (tél : 06-49-55-08-27) pour toute question sur cette propriété, sur les démarches à suivre ou sur les modalités de vente.












