

- Prix
- 235 000 €
Maison neuve • Saint-André-sur-Orne (14)
- Nom et prix
- Terrain à bâtir () • 235 000 €
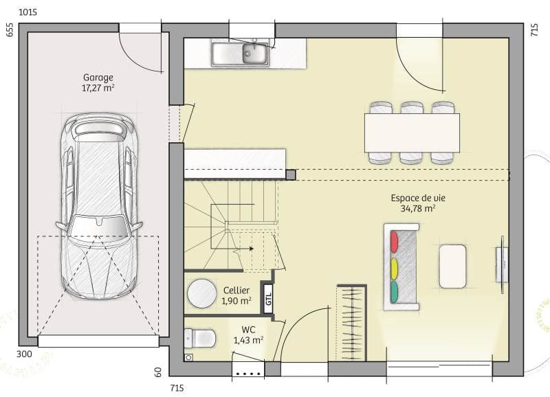
Maison F5 (74 m²) en vente à Saint-André-sur-Orne EMPLACEMENT PRIVILÉGI- MAISON 5 PIÈCES NEUVE En vente à 23 km de la Manche et à 7 km de Caen, Maisons Balency Caen vous propose, bénéficiant d'un emplacement d'exception dans Saint-André-sur-Orne (14320), cette maison de 5 pièces de 74 m² et de 390 m² de terrain. Son intérieur se divise en trois chambres, une cuisine et une salle de bains. Cette maison compte 2 niveaux. Elle est neuve. La maison se trouve dans un quartier prisé. Il y a l'École Élémentaire René Goscinny et l'École Maternelle Jacques Prévert à moins de 10 minutes à pied. Niveau transports en commun, on trouve les gares Caen et Frénouville-Cagny à moins de 10 minutes en voiture. Les autoroutes A84 et A13 et les nationales N814, N158 et N13 sont accessibles à moins de 10 km. Il y a un tennis, une bibliothèque, des commerces, deux supermarchés, une boulangerie, deux boucheries-charcuteries et un bureau de poste à proximité du bien. Elle est proposée à l'achat pour 235 000 €. N'hésitez pas à prendre contact avec Francois LAMY (tél : 06-35-39-35-17) pour tout renseignement sur la maison ou sur les démarches à suivre. Faites de vos projets immobiliers une réalité avec Maisons Balency Caen.