

- Prix
- 306 029 €
Maison neuve • Dieppe (76)
- Nom et prix
- Terrain à bâtir Dieppe (76200) • 306 029 €
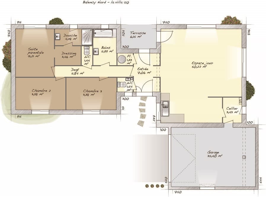
A construire : maison T5 (120 m²) à Derchigny IDÉALEMENT SITUÉE - MAISON 5 PIÈCES NEUVE En vente : localisée à 4 km de la Manche et à deux pas de Dieppe, nous sommes ravis de vous présenter, idéalement située dans Derchigny (76370), cette maison de 5 pièces de plain-pied de 120 m² et de 597 m² de terrain. Son intérieur comporte trois chambres, une cuisine et deux salles de bains. Cette maison est neuve. La maison se situe dans un quartier convoité. Côté transports en commun, il y a la gare Dieppe à moins de 10 minutes en voiture. On trouve un accès à la nationale N27 à 16 km. On trouve une bibliothèque dans les environs. Son prix de vente est de 306 029 €. Prenez contact avec notre agence (RENIER Célia : 07-62-90-87-77) pour obtenir de plus amples informations sur la maison. Maisons Balency Boos vous accompagne dans tous vos projets immobiliers et à toutes les étapes de votre projet.