

- Prix
- 360 000 €
Maison neuve • Bezons (95)
- Nom et prix
- Terrain à bâtir Bezons (95870) • 360 000 €
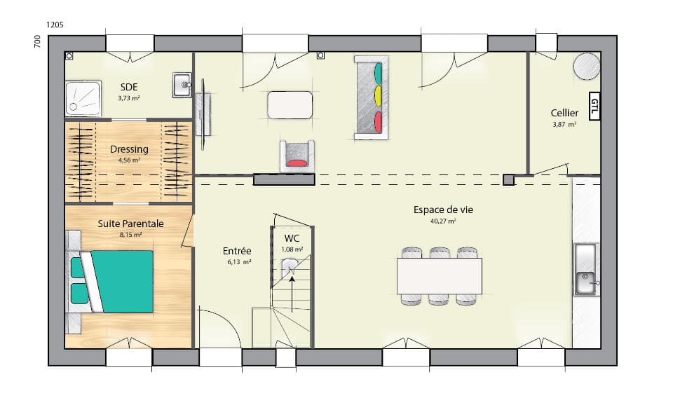
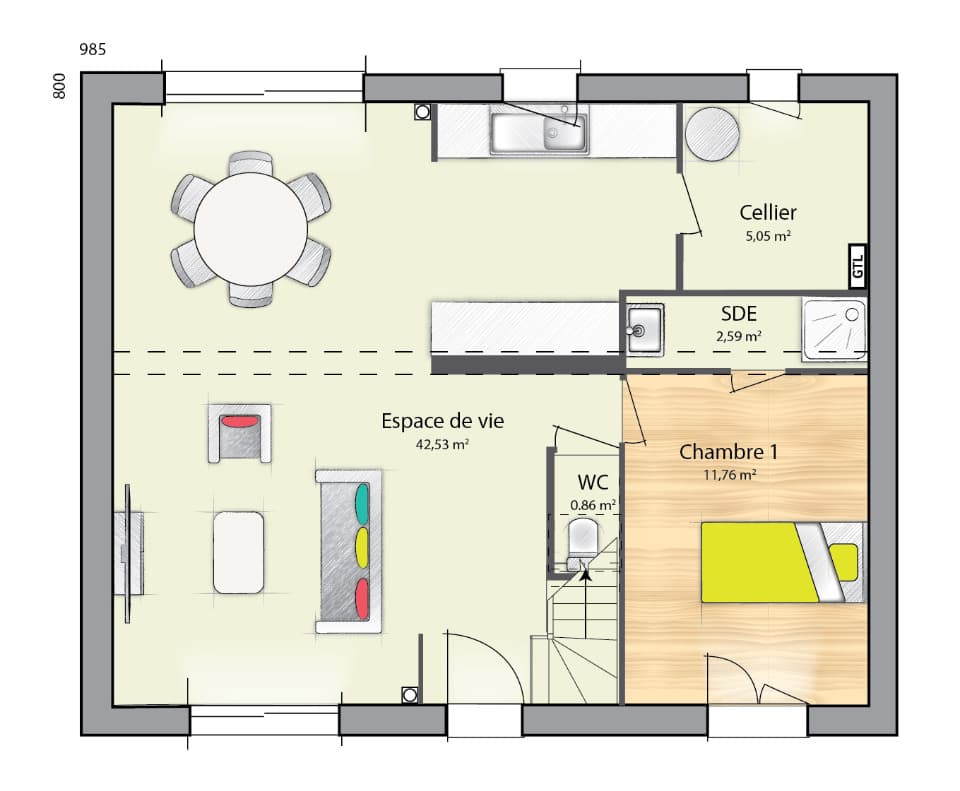
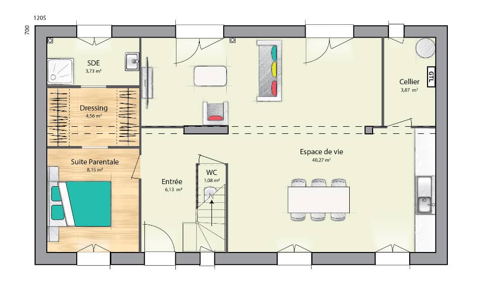
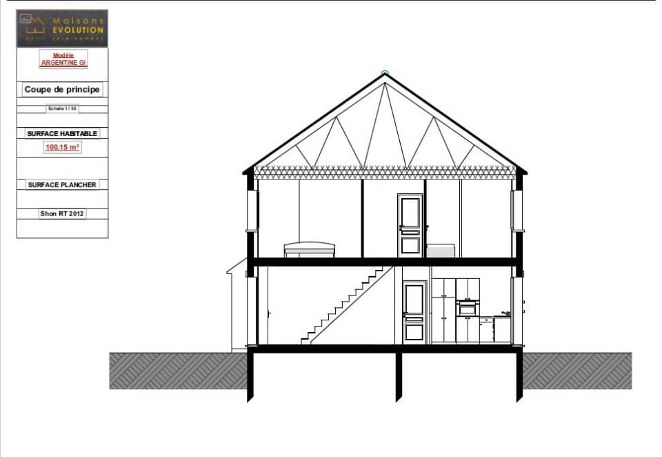
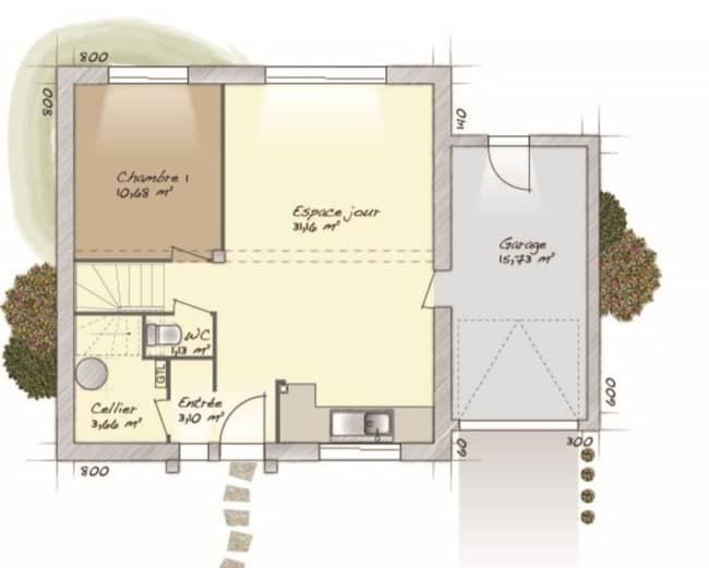
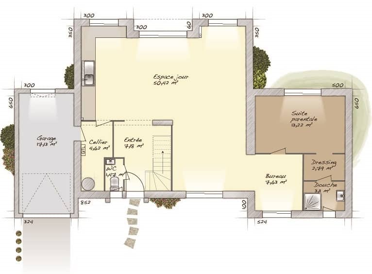
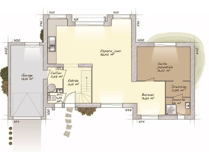
VENTE : maison F6 (105 m²) à Bezons MAISON 6 PIÈCES NEUVE À côté de la station Houilles-Carrières-sur-Seine (Paris à 10 min par le RER A), Maisons Evolution Dammarie-les-Lys vous présente à vendre à Bezons (95870), cette maison de 6 pièces de 105 m². Son intérieur est composé de quatre chambres, d'une cuisine et de deux salles de bains. Le terrain du bien s'étend sur 380 m². Cette maison comporte 2 niveaux. Elle est neuve. Tous les types d'établissements scolaires sont implantés à moins de 10 minutes à pied, tout comme une crèche. Niveau transports, il y a les lignes A, C et D du RER ainsi que 54 gares à moins de 10 minutes en voiture. On trouve une bibliothèque, deux bassins de natation, deux tennis, des supermarchés, des commerces, des boulangeries, une poissonnerie et des épiceries à proximité de la maison. Elle est proposée à l'achat pour 360 000 €. Hors frais de notaire et raccordements. Contactez le 06-37-77-37-68 ou 01-64-79-02-20 pour toute question sur la maison, sur les modalités de vente et sur les démarches à suivre. Concrétisez vos projets immobiliers avec Maisons Evolution Dammarie-les-Lys.











