

- Prix
- 760 000 €
Maison neuve • Suresnes (92)
- Nom et prix
- Terrain à bâtir Suresnes (92150) • 760 000 €
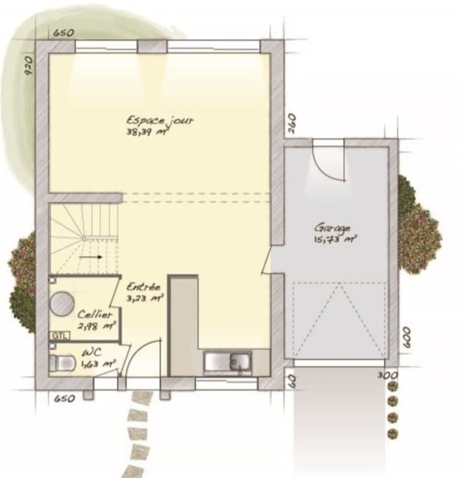
VENTE d'une maison F5 (90 m²) à Suresnes MAISON 5 PIÈCES NEUVE À quelques minutes de la gare, votre agence Maisons Balency Saint-Maur-des-Fossés est heureuse de vous présenter en vente à Suresnes (92150), cette maison de 5 pièces de 90 m². Cette maison comporte 2 niveaux. Son intérieur comporte trois chambres, une cuisine et une salle de bains. Cette maison est neuve. Le terrain de la propriété est de 155 m². Il y a des établissements scolaires du primaire et du secondaire à moins de 10 minutes à pied, six structures d'accueil pour les tout-petits, tout comme une établissement du supérieur dans un rayon de 1 km : l'Institut national supérieur de formation et de recherche pour l'éducation des jeunes handicapés et les enseignements adaptés. Côté transports en commun, on trouve la gare Suresnes Mont Valérien, positionnant Paris à 15 min de cette maison en transilien. Il y a une bibliothèque, un tennis, un bassin de natation, des commerces, des boulangeries, quatre supermarchés, des épiceries et quatre supérettes dans les environs. Il est à vendre pour la somme de 760 000 €. Prenez contact avec Christophe MONTANIER (06-10-23-51-22) pour tout renseignement sur la maison ou sur les démarches à suivre. Faites de vos projets immobiliers une réalité avec Maisons Balency Saint-Maur-des-Fossés.