

- Prix
- 342 000 €
Maison neuve • Courseulles-sur-Mer (14)
- Nom et prix
- Terrain à bâtir () • 342 000 €
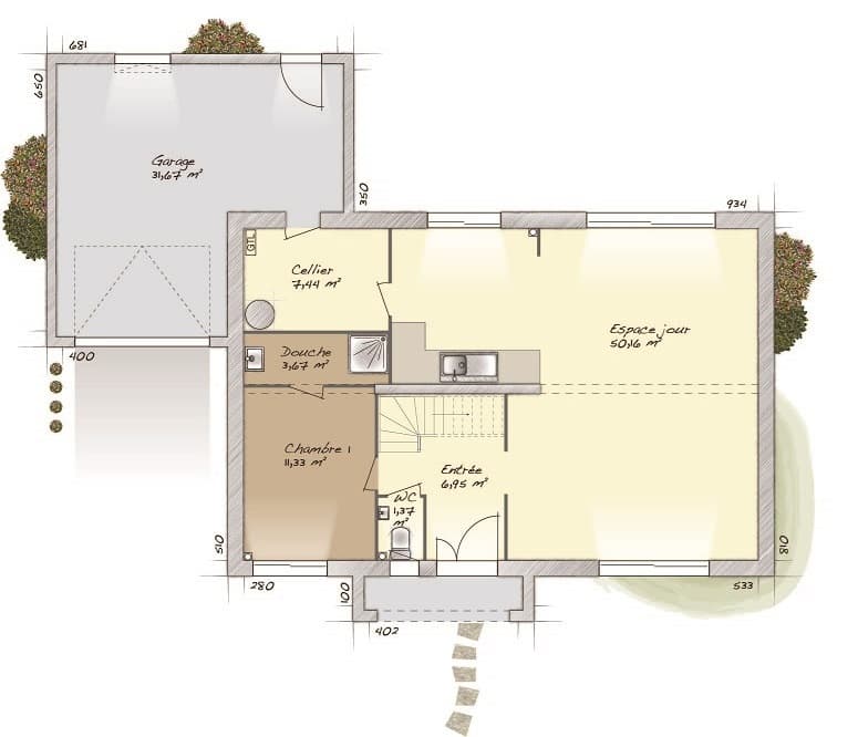
Courseulles-sur-Mer : maison T7 (160 m²) en vente CENTRE-VILLE - MAISON 7 PIÈCES NEUVE À vendre à 4 km de la Manche et à deux pas de Caen, notre agence Maisons Balency Caen est ravie de vous présenter cette maison de 7 pièces de 160 m² et de 422 m² de terrain dans le centre de Courseulles-sur-Mer (14470). Son intérieur dispose de quatre chambres, d'une cuisine et de deux salles de bains. Cette maison compte 2 niveaux. Elle est neuve. L'École Pirmaire Gilbert Boulanger et le Collège Quintefeuille sont implantés à moins de 10 minutes à pied. L'autoroute A84 et les nationales N13 et N814 sont accessibles à moins de 20 km. On trouve un tennis, un port de plaisance, un bassin de natation, des commerces, un supermarché, trois boulangeries, des poissonneries et un bureau de poste à proximité du bien. Elle est à vendre pour la somme de 342 000 €. Prenez contact avec Francois LAMY (06-35-39-35-17) pour obtenir de plus amples informations sur la maison ou sur les modalités de vente. Maisons Balency Caen vous accompagne à toutes les étapes de votre projet et dans toutes vos démarches.