
Maison neuve • Roullet-Saint-Estèphe (16)
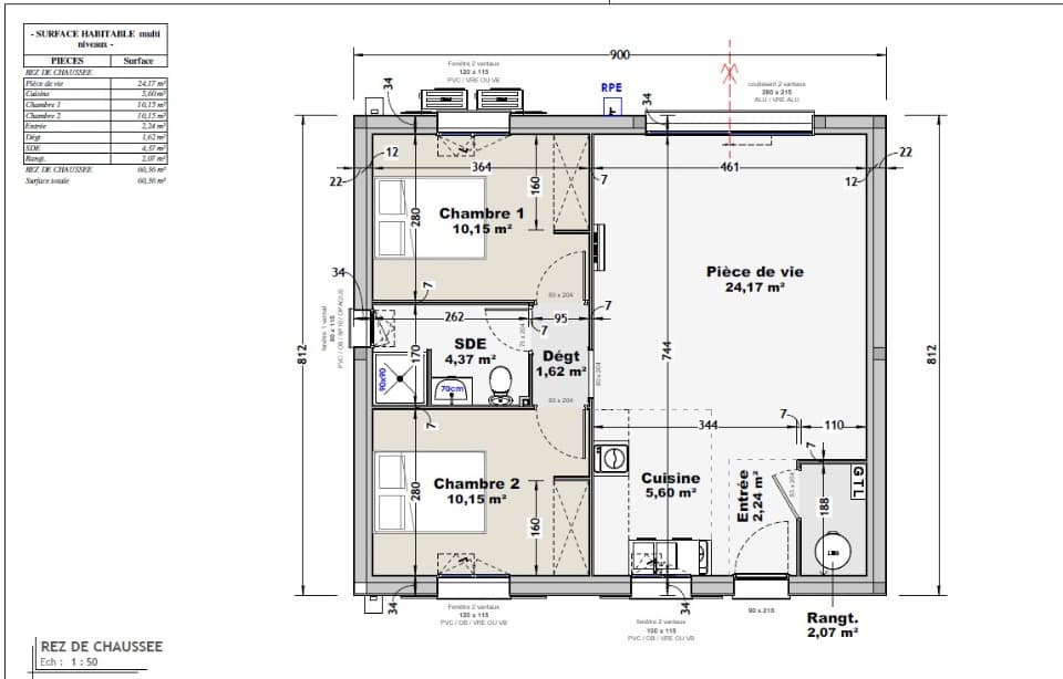
VENTE : maison F3 (60 m²) à Roullet-Saint-Estèphe IDÉALEMENT SITUÉE - MAISON 3 PIÈCES NEUVE Notre agence Bermax Construction Saint-Yrieix-sur-Charente est ravie de vous proposer cette maison de 3 pièces de plain-pied de 60 m². Elle inclut deux chambres, une cuisine et une salle de bains. La maison est neuve. Le terrain de la propriété est de 601 m². Cette maison se situe dans un quartier convoité. Des établissements scolaires du primaire et du secondaire se trouvent à moins de 10 minutes en voiture, tout comme une structure d'accueil pour les tout-petits à moins de 10 minutes à pied. Côté transports en commun, il y a la gare Châteauneuf-sur-Charente à moins de 10 minutes en voiture. On trouve un accès à la nationale N10 à 2 km. On trouve des tennis, des bibliothèques, deux bassins de natation, un bowling, des boulangeries, des commerces, des supermarchés, des boucheries-charcuteries et des bureaux de poste à proximité de la maison. Enfin, le marché Place du Champ de Foire a lieu tous les samedis matin. Son prix de vente est de 148 500 €. Contactez notre chargée de projet (Pauline : 06-80-96-56-78) pour toute information sur la maison ou sur les modalités de vente.
Proposé par BERMAX










