
Maison neuve • Villiers-le-Bel (95)
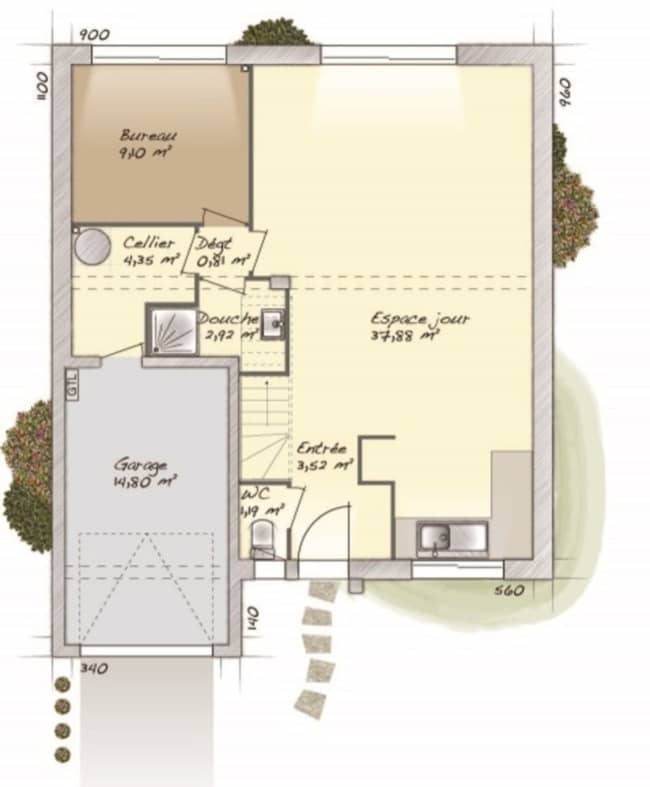
Maison de 6 pièces (89 m²) en vente à Villiers-le-Bel MAISON 6 PIÈCES NEUVE En vente : à proximité de la gare de Sarcelles-Saint-Brice (Paris à 15 min avec le Transilien H), nous sommes heureux de vous présenter cette maison de 6 pièces de 89 m² à Villiers-le-Bel (95400). Il s'agit d'une maison de 2 niveaux. Elle est composée de quatre chambres, d'une cuisine et d'une salle de bains. La maison est neuve. Le terrain de la propriété est de 570 m². Plusieurs écoles (maternelle, élémentaire, primaire et collège) se trouvent à moins de 10 minutes à pied, tout comme une structure d'accueil pour la petite enfance. Niveau transports en commun, il y a les lignes de RER D, C et B ainsi que 37 gares à moins de 10 minutes en voiture. On trouve des commerces, un bureau de poste, des boucheries-charcuteries, trois supérettes et des épiceries à quelques minutes à peine. Le marché Place Gounoud anime le quartier tous les dimanches matin. Son prix de vente est de 365 000 €. N'hésitez pas à prendre contact avec notre agence (William BIDAN : 06-22-45-69-29) pour toute question sur la maison. Concrétisez vos projets immobiliers avec Maisons Balency Baillet-en-France.
Proposé par MAISONS BALENCY - YVELINES










