

- Prix
- 184 896 €
Maison neuve • 1 RUE DE LA MAIRIE (77)
- Nom et prix
- Projet de construction d'une maison 86 m² avec terrain à SAINT-FARGEAU-PONTHIERRY (77) • 184 896 €
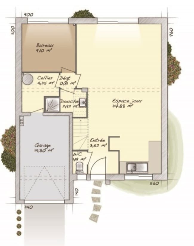
A SAINT-FARGEAU-PONTHIERRY sur un terrain de 310 m², MAISONS SESAME vous propose de réaliser cette maison neuve d'une surface de 86 m² habitables avec 3 chambres. Le modèle EVOLUTIVE GARAGE 85 est une maison adaptable, pensée pour évoluer avec ses propriétaires au fil du temps. Avec une surface habitable de 86 m², cette maison à toit plat et son petit porche au-dessus de la porte d’entrée apporte un design moderne et fonctionnel. Elle inclut également un garage de 15 m², parfait pour stocker votre véhicule ou aménager un espace supplémentaire. Au rez-de-chaussée, l’entrée mène à un séjour spacieux, une cuisine ouverte, un cellier pratique, et un WC séparé. Ce niveau optimise l’espace pour un confort quotidien, tout en offrant des possibilités d'aménagement selon les besoins futurs. À l’étage, vous trouverez 3 chambres, une salle de bains et un WC séparé, idéal pour une vie de famille. Grâce à sa conception flexible, ce modèle permet d'évoluer facilement avec le temps, offrant ainsi une maison qui s’adapte aux besoins changeants de ses occupants. MAISONS SÉSAME vous propose les prestations suivantes : - Plans des maisons modulables et adaptables selon vos besoins et les spécificités de votre terrain - Large choix de systèmes de chauffage performants et économes en énergie - Sélection de matériaux de qualité garantissant confort et durabilité - Accompagnement sur-mesure pour la recherche et l’acquisition de votre terrain - Construction conforme à la réglementation en vigueur et à la norme RE2020 - Maisons certifiées NF HABITAT, gage de qualité, de performance et de confort Informations du terrain : A SAINT FARGEAU PONTHIERRY de construire votre future maison individuelle proche des ecoles piscine commerces centre ville transports en commun et gare. Acces rapide aux grands axes routiers. A VISITER SANS TARDER. Demandez une étude gratuite et personnalisée de votre projet de construction ! Étude gratuite de votre projet de construction ! De nombreux terrains disponibles dans votre secteur. Informations légales : Maisons Sésame, constructeur de maisons individuelles, propose une sélection de terrains en collaboration avec ses partenaires fonciers, sous réserve de disponibilité. Il n’agit pas en tant que mandataire pour la vente de ces terrains. Nos maisons, certifiées NF Habitat et conformes à la réglementation thermique en vigueur, vous garantissent un habitat durable et économe en énergie. Découvrez un large choix de modèles adaptés aux besoins de toute la famille. Informations tarifaires : Les prix indiqués sont donnés à titre indicatif et n’incluent pas les frais annexes (frais de notaire, raccordements, etc.). Les visuels et prix présentés sont non contractuels. Pour plus de détails, consultez nos conditions en agence. N° ORIAS IOBSP 13007108 – RCS Versailles 388 867 426. Les informations sur les risques auxquels ce bien est exposé sont disponibles sur le site Géorisques : www.georisques.gouv.fr Cette annonce a été créée et diffusée avec le logiciel VITAHOME. Contactez Marc LEBORGNE au 06 24 35 06 02 ou au 01 64 79 14 14 (Maisons Sésame - Agence de Dammarie-les-Lys).












