
- Prix
- 303 400 €
Maison neuve • Marines (95)
- Nom et prix
- Terrain à bâtir Marines (95640) • 303 400 €
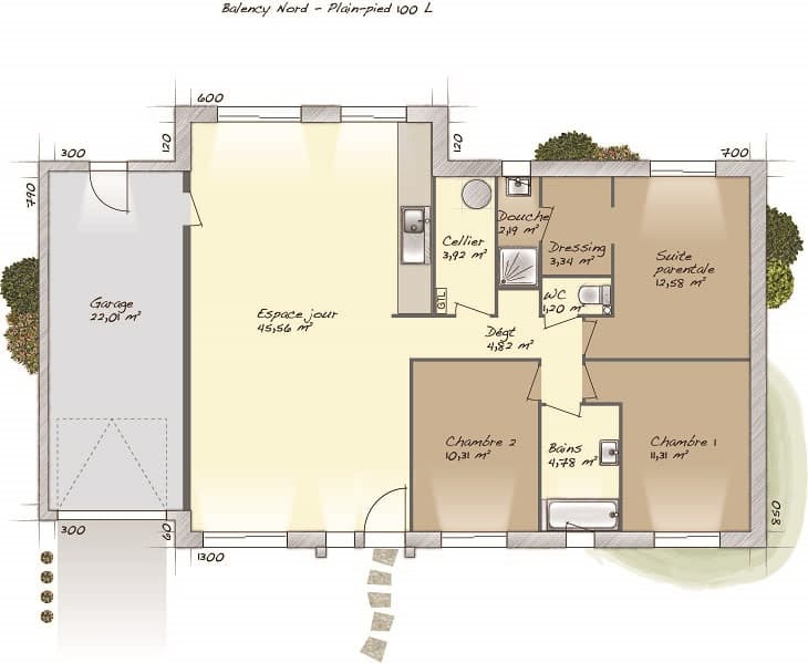
VENTE : maison de 5 pièces (95 m²) à Marines IDÉALEMENT SITUÉE - MAISON 5 PIÈCES NEUVE À vendre : à deux pas du Transilien J (gare de Santeuil-Le Perchay, 55 min de Paris), notre agence Les Maisons Extraco Chambourcy est ravie de vous présenter cette maison de 5 pièces de 95 m² idéalement située dans Marines (95640). Il s'agit d'une maison de 2 niveaux. Son intérieur compte quatre chambres, une cuisine et deux salles de bains. La maison est neuve. Le terrain de la propriété s'étend sur 434 m². La maison se trouve dans un quartier attractif. Il y a l'École Élémentaire Paul Cézanne, l'École Maternelle les Murgers et le Collège des Hautiers à moins de 10 minutes à pied. Niveau transports, on trouve six gares à moins de 10 minutes en voiture. Il y a une bibliothèque, des commerces, deux boulangeries, un supermarché, une boucherie-charcuterie et un bureau de poste à proximité. Elle est proposée à l'achat pour 303 400 €. Prenez contact avec notre agence (BOREAU Gilles : 01-30-65-11-55) pour obtenir de plus amples renseignements sur la maison. Concrétisez vos projets immobiliers avec Les Maisons Extraco Chambourcy.












