

- Prix
- 436 480 €
Maison neuve • Auvers-sur-Oise (95)
- Nom et prix
- Terrain à bâtir () • 436 480 €
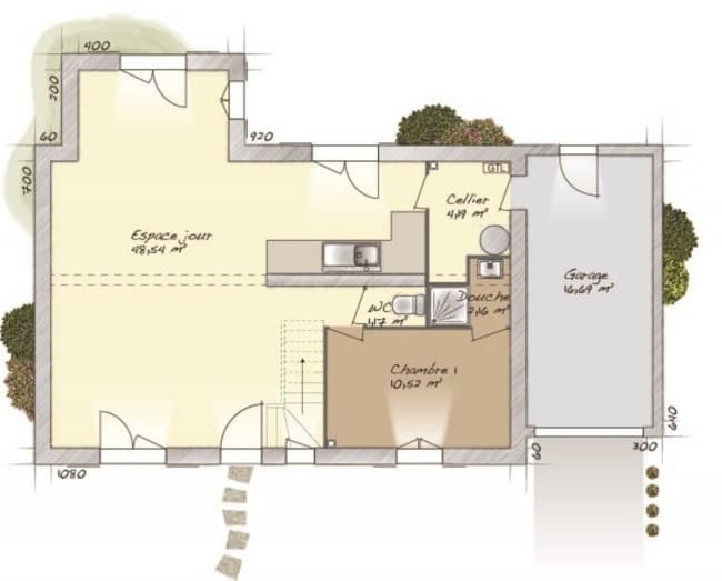
VENTE : maison F6 (133 m²) à Auvers-sur-Oise MAISON 6 PIÈCES NEUVE - PROCHE DE PARIS À vendre : située à 29 km de Paris, à Auvers-sur-Oise (95430), Maisons Balency Moisselles vous propose cette maison de 6 pièces de 133 m² et de 400 m² de terrain. Son intérieur se divise en trois chambres, une cuisine et deux salles de bains. C'est une maison de 2 niveaux. Elle est neuve. Il y a l'École Primaire Vavasseur, l'École Élémentaire les Aunaies et le Collège Charles François Daubigny à moins de 10 minutes à pied. Niveau transports en commun, on trouve la gare Auvers-sur-Oise à quelques pas de la maison. Il y a un tennis, deux boulangeries, trois commerces, un supermarché, un bureau de poste et une épicerie à quelques minutes à peine. Elle est proposée à l'achat pour 436 480 €. Contactez Denis DUCOS (tél : 06-80-06-50-40) pour toute question sur cette maison ou sur les démarches à suivre.












