

- Prix
- 277 200 €
Maison neuve • Les Sorinières (44)
- Nom et prix
- Terrain à bâtir () • 277 200 €
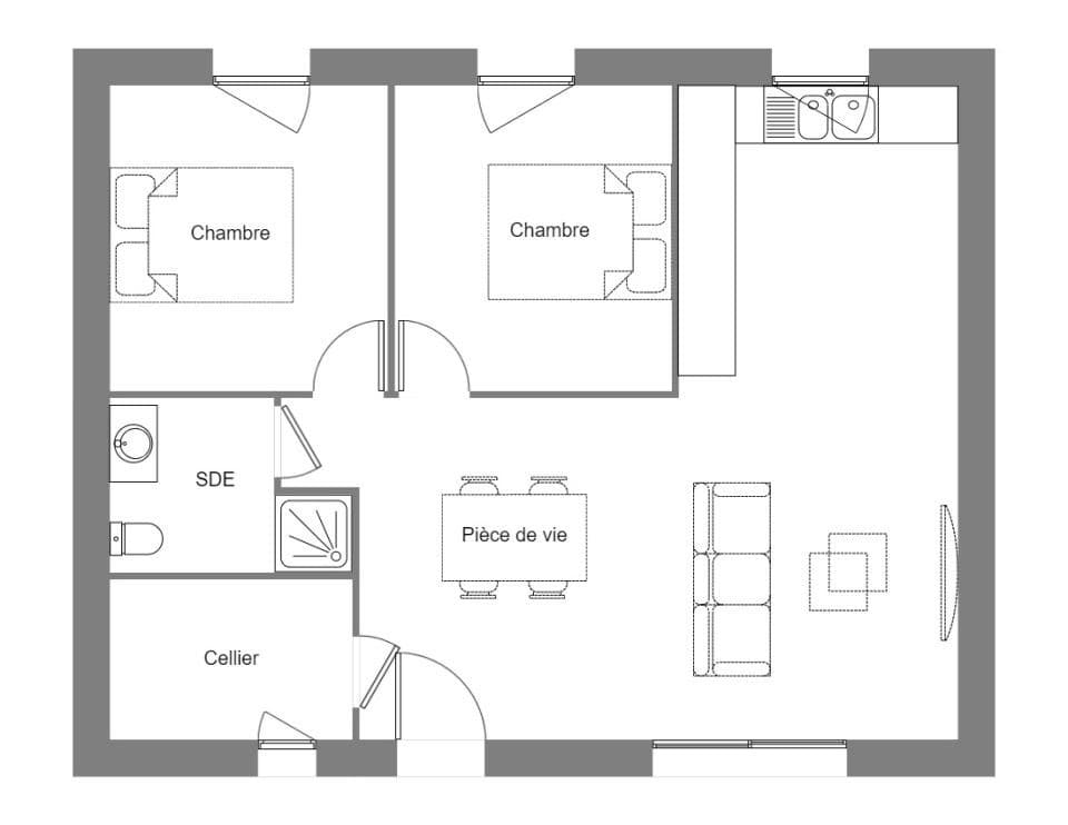
Vente : Maison F3 (57 m²) aux Sorinières IDÉALEMENT SITUÉE - MAISON 3 PIÈCES NEUVE À vendre aux Sorinières (44840), à seulement 25 km de la côte atlantique et à 11 km de Nantes, découvrez cette maison de 3 pièces de plain-pied de 57 m², située sur un terrain de 540 m². Elle comprend deux chambres, une cuisine et une salle de bains. Cette maison neuve offre un cadre de vie agréable et moderne. Prix de vente : 277 200 € Dans un secteur attractif, cette maison est proche des écoles, des transports en commun et des commerces. Contactez Thibault DUPONT (02-40-26-28-28) pour plus d'informations sur la propriété ou les modalités de vente. Maisons de l'Avenir Haute-Goulaine vous accompagne dans la réalisation de vos projets immobiliers.