

- Prix
- 255 000 €
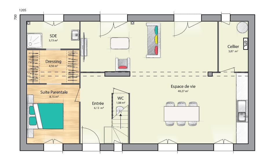
Maison neuve • Blérancourt (23)
- Nom et prix
- Terrain à bâtir () • 255 000 €
Terrain à bâtir situé à BLERANCOURT, d'une superficie de 978 m²,plat, idéalement situé, avec une belle façade de 27 ml. Exemple de projet maison avec un comble aménagé, d'une surface de 105 m² avec 4 chambres dont 1 suite parentale au rez de chaussée, 3 chambres et 1 salle de bain à l'étage. Tous nos projets sont entièrement réalisés sur-mesure, de nombreuses prestations incluses: baies coulissantes en aluminium, volets roulants intégrés à la maçonnerie (non-apparents) motorisés. Entrée, cuisine, pièce de vie, cellier et pièces d'eau carrelés, maison prête à décorer, clef en main. Pompe à chaleur ou pompe à chaleur hybride (gaz) dernière génération (classe énergétique A+), plancher chauffant RDC (et ETAGE), sèche-serviettes, plusieurs choix de menuiseries intérieures, construction en brique. RE 2020. Projet terrain + maison + frais annexes. Pour tout renseignement contacter XAVIER de l'agence Maisons France Confort : 06 16 27 53 27