

- Prix
- 290 000 €
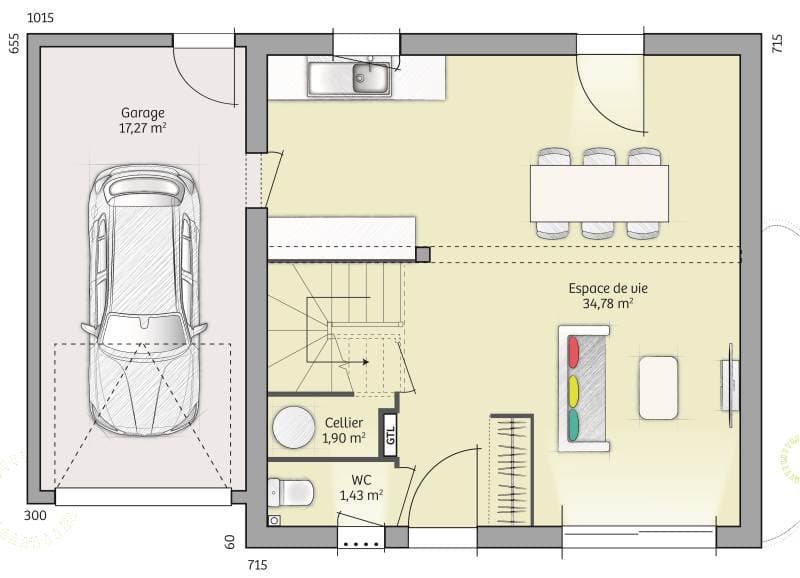
Maison neuve • Villemoisson Sur Orge (91)
- Nom et prix
- TERRAIN+MAISON A Villemoisson‑sur‑Orge • 290 000 €
Maison neuve à construire sur un terrain de 412m² situé A Villemoisson‑sur‑Orge, Dans un environnement calme et résidentiel, vu avec notre partenaire foncier. Cette maison individuelle de 100m² habitable est composée au RDC, D'un GARAGE /salle à manger, cuisine ouverte, un WC indépendant et un cellier/buanderie. A l'étage vous trouverez 3 A 4 belles chambres lumineuses, dont une avec grand dressing, une salle de bain .plans modifiables et personnalisable à votre convenance sans frais supplémentaire )Vous bénéficierez de tout le savoir-faire et de l'accompagnement pour la réalisation de votre projet de vie. Conforme à la nouvelle réglementation thermique et environnementale RE2020. Les prestations prévues participeront au bien être quotidien de votre famille. Terrain sélectionné et vu pour vous sous réserve de disponibilité et au prix indiqué par notre partenaire foncier La culture chez Maisons Still est de réaliser les projets sur mesure, l'aspect intérieur de cette maison est donc entièrement modulable par vos soins, en fonction de vos besoins et de vos envies. Garanties et assurances obligatoires incluses (voir détails en agence). Prix indicatif hors peintures, hors options et hors frais annexes.












