

- Prix
- 301 964 €
Maison neuve • Ris-Orangis (91)
- Nom et prix
- Terrain à bâtir Ris-Orangis (91130) • 301 964 €
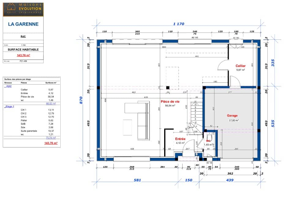
Réalisez votre rêve de maison sur mesure avec Maisons Evolution à RIS ORANGIS dans un quartier calme proche des transports et des commodités ! Faites confiance à Maisons Évolution, membre du Groupe Hexaom, leader français de la construction de maisons individuelles depuis plus de 100 ans ! Notre expertise et notre savoir-faire nous permettent de vous accompagner dans la création de votre maison idéale. Nos avantages : - Plans 100% personnalisables : chaque projet est unique, et nous adaptons les plans selon vos envies et besoins. - Expertise et fiabilité d'un groupe leader avec plus d'un siècle d'expérience. - Construction sur mesure, conçue pour répondre à vos exigences et à votre budget. Vous avez un projet ? Parlons-en ! Contactez VERON Vanessa dès aujourd'hui au 06 29 07 38 77. Transformons ensemble vos idées en réalité !












