logo de nos-terrains.com

1991 maisons neuves à vendre à Brignancourt (95)

Résultats de recherche

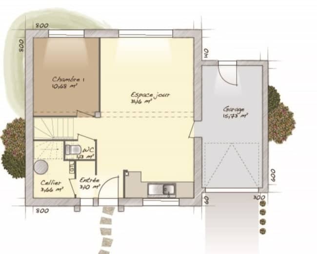
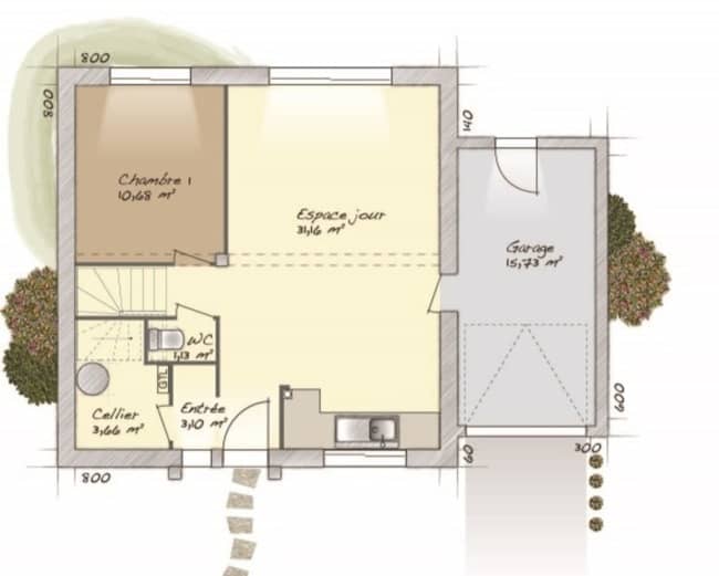
Maison neuve -  à Hardricourt (78), prix 413 250 €
413 250 €
116 m²
3563 €/m²

Maison neuveHardricourt (78)

Maison R+1 contemporaine en 3 blocs Sur cette jolie parcelle située à Hardricourt, faites construire la superbe Maison Etage Contemporaine en 3 blocs de vos rêves ! Nous nous adaptons à vos souhaits et espérons que ce modèle vous servira d'inspiration. Toutes nos maisons sont uniques et reflètent les vies de nos clients. Cette Maison Etage Contemporaine répond aux normes énergétiques en vigueur (RE 2020) et dispose d'un agencement agréable et personnalisable comprenant : - Salon/séjour traversant avec cuisine ouverte, avec 2 baies coulissantes et cellier/buanderie attenant, - 4 chambres dont 1 suite parentale au rez-de-chaussée, - 1 salle de bains et 2 WC séparés, - Garage de 17m². Isolation renforcée avec système de chauffage très économique par pompe à chaleur. Maison certifiée RE2020 DPE : A / GSE : B. Nos maisons sont construites dans toute la Normandie. Nous avons acquis un savoir faire et une solide réputation depuis 1979. Toutes nos maisons sont sous contrat CCMI.  Vous pouvez nous rencontrer au sein de nos différentes agences dans toute la Normandie. Notre savoir-faire familial nous a permis de réaliser le rêve de plus de 4000 foyers en Normandie ! Nous sommes à votre écoute et nous nous adaptons constamment à tout type de situation, de terrain, de budget, d'envies. Ainsi, nous partons de vos plans pour dessiner avec vous la maison de vos rêves. Venez nous rencontrer : Les Demeures De Province – 55 rue de Conches 27 000 Evreux Étude gratuite auprès de votre conseiller : au 06 09 38 43 46 Maison seule au prix de 195 000 € hors option. __________________________________________________________ Photos non contractuelles. Projet à réaliser. Prix maison hors options. Ne comprend pas les aménagements extérieurs et intérieurs (éléments de décoration, mobilier, cuisine équipée). Garanties et assurances obligatoires incluses (voir détails en agence). Hors raccordements, hors branchements. Hors frais de notaire du terrain. Terrain sélectionné et vu pour vous par

Proposé par LES DEMEURES DE PROVINCE

Maison neuve - Projet de construction d'une maison 97 m² avec terrain à CERGY (95) à Rue du Clos Brûloir (95), prix 154 522 €
154 522 €
97 m²
1593 €/m²

Maison neuveRue du Clos Brûloir (95)

A CERGY sur un terrain de 305 m², MAISONS SESAME vous propose de réaliser cette maison neuve d'une surface de 97 m² habitables avec 3 chambres. Le modèle SAPHIR 100 est une maison de 97 m² qui séduit par son design élégant, particulièrement souligné par son fronton sur la façade, ajoutant une touche de raffinement et de caractère à l'ensemble. Au rez-de-chaussée, la maison dispose d'un grand séjour lumineux, une cuisine ouverte et un bureau qui peut également servir d’espace pour télétravail, ainsi qu'un WC séparé pour plus de praticité. À l’étage, vous trouverez 3 chambres spacieuses, idéales pour accueillir toute la famille, ainsi qu'une salle de bain commune, offrant tout le confort nécessaire. Le SAPHIR 100 est un modèle parfait pour ceux qui recherchent une maison fonctionnelle avec un design moderne et soigné, tout en étant adaptée aux besoins contemporains, comme l'intégration d’un bureau pour télétravail. MAISONS SÉSAME vous propose les prestations suivantes : - Plans des maisons modulables et adaptables selon vos besoins et les spécificités de votre terrain - Large choix de systèmes de chauffage performants et économes en énergie - Sélection de matériaux de qualité garantissant confort et durabilité - Accompagnement sur-mesure pour la recherche et l’acquisition de votre terrain - Construction conforme à la réglementation en vigueur et à la norme RE2020 - Maisons certifiées NF HABITAT, gage de qualité, de performance et de confort Informations du terrain : - Ecoles à proximité - Gare 10 min à pieds - Commerces à pieds Demandez une étude gratuite et personnalisée de votre projet de construction ! Étude gratuite de votre projet de construction ! De nombreux terrains disponibles dans votre secteur. Informations légales : Maisons Sésame, constructeur de maisons individuelles, propose une sélection de terrains en collaboration avec ses partenaires fonciers, sous réserve de disponibilité. Il n’agit pas en tant que mandataire pour la vente de ces terrains. Nos maisons, certifiées NF Habitat et conformes à la réglementation thermique en vigueur, vous garantissent un habitat durable et économe en énergie. Découvrez un large choix de modèles adaptés aux besoins de toute la famille. Informations tarifaires : Les prix indiqués sont donnés à titre indicatif et n’incluent pas les frais annexes (frais de notaire, raccordements, etc.). Les visuels et prix présentés sont non contractuels. Pour plus de détails, consultez nos conditions en agence. N° ORIAS IOBSP 13007108 – RCS Versailles 388 867 426. Les informations sur les risques auxquels ce bien est exposé sont disponibles sur le site Géorisques : www.georisques.gouv.fr Cette annonce a été créée et diffusée avec le logiciel VITAHOME. Contactez Mihail AZAROV au 06 40 32 23 45 ou au 01 34 78 78 10 (Maisons Sésame - Agence de Mantes la Jolie).

Proposé par MAISONS SÉSAME

Maison neuve - Projet de construction d'une maison 73 m² avec terrain à CERGY (95) à CERGY (95), prix 135 267 €
135 267 €
73 m²
1853 €/m²

Maison neuveCERGY (95)

A CERGY sur un terrain de 650 m², MAISONS SESAME vous propose de réaliser cette maison neuve d'une surface de 73 m² habitables avec 3 chambres. Le modèle ATRIA 75 est une maison à étage de 73 m², parfaitement agencée pour offrir un espace de vie fonctionnel et confortable. Le rez-de-chaussée comprend un grand séjour lumineux, ouvert sur une cuisine spacieuse, créant une atmosphère conviviale et fluide. Ce niveau dispose également d’une salle de bains et d’un WC séparé, maximisant l’espace disponible pour un confort optimal. À l’étage, les 3 chambres sont idéalement réparties, offrant un espace privé et agréable pour chaque membre de la famille. MAISONS SÉSAME vous propose les prestations suivantes : - Plans des maisons modulables et adaptables selon vos besoins et les spécificités de votre terrain - Large choix de systèmes de chauffage performants et économes en énergie - Sélection de matériaux de qualité garantissant confort et durabilité - Accompagnement sur-mesure pour la recherche et l’acquisition de votre terrain - Construction conforme à la réglementation en vigueur et à la norme RE2020 - Maisons certifiées NF HABITAT, gage de qualité, de performance et de confort Informations du terrain : À 10 minutes de Cergy magnifique terrain de 650 m² à Vauréal 95 une opportunité exceptionnelle ! Idéalement situé au cœur de la charmante commune de Vauréal, ce terrain rare offre un cadre de vie recherché, calme et verdoyant, tout en restant parfaitement connecté. Vous êtes à 10 minutes de Cergy, que ce soit en voiture ou en transports accès rapide au RER A, lignes de bus, pôles universitaires, grandes écoles, commerces, centres commerciaux, restaurants, équipements sportifs et culturels… tout est à portée de main. À proximité directe, les grands axes A15,A86 permettent de rejoindre Paris en seulement 39 minutes, en voiture comme en transports, facilitant le quotidien des actifs. Vauréal séduit par la qualité de ses écoles, sa vie de quartier dynamique, ses infrastructures modernes et sa tranquillité préservée un équilibre parfait entre confort urbain et nature. Un terrain de 650m² à Vauréal à ce prix, c’est tout simplement exceptionnel. Une opportunité rare à ne pas laisser passer. Demandez une étude gratuite et personnalisée de votre projet de construction ! Étude gratuite de votre projet de construction ! De nombreux terrains disponibles dans votre secteur. Informations légales : Maisons Sésame, constructeur de maisons individuelles, propose une sélection de terrains en collaboration avec ses partenaires fonciers, sous réserve de disponibilité. Il n’agit pas en tant que mandataire pour la vente de ces terrains. Nos maisons, certifiées NF Habitat et conformes à la réglementation thermique en vigueur, vous garantissent un habitat durable et économe en énergie. Découvrez un large choix de modèles adaptés aux besoins de toute la famille. Informations tarifaires : Les prix indiqués sont donnés à titre indicatif et n’incluent pas les frais annexes (frais de notaire, raccordements, etc.). Les visuels et prix présentés sont non contractuels. Pour plus de détails, consultez nos conditions en agence. N° ORIAS IOBSP 13007108 – RCS Versailles 388 867 426. Les informations sur les risques auxquels ce bien est exposé sont disponibles sur le site Géorisques : www.georisques.gouv.fr Cette annonce a été créée et diffusée avec le logiciel VITAHOME. Contactez Mahmoud KHELILI au 07 67 68 19 56 ou au 01 64 49 71 00 (Maisons Sésame - Agence de la Ville du Bois).

Proposé par MAISONS SÉSAME

Maison neuve - Projet de construction d'une maison 87 m² avec terrain à CERGY (95) à CERGY (95), prix 143 089 €
143 089 €
87 m²
1645 €/m²

Maison neuveCERGY (95)

A CERGY sur un terrain de 650 m², MAISONS SESAME vous propose de réaliser cette maison neuve d'une surface de 87 m² habitables avec 3 chambres. Le modèle ATRIA 90 est une maison à étage de 87 m², offrant un espace de vie optimisé pour le confort et la praticité. Le rez-de-chaussée comprend une grande entrée, menant à un vaste séjour lumineux, ouvert sur une cuisine spacieuse. Ce niveau dispose également d’une salle de bains et d’un WC séparé, maximisant l’espace disponible pour un quotidien pratique. À l’étage, les 3 chambres sont agencées de manière à offrir un cadre intime et confortable pour chaque membre de la famille. Le modèle ATRIA 90 allie confort, fonctionnalité et espace, pour une maison qui répond parfaitement aux besoins d’une famille moderne. MAISONS SÉSAME vous propose les prestations suivantes : - Plans des maisons modulables et adaptables selon vos besoins et les spécificités de votre terrain - Large choix de systèmes de chauffage performants et économes en énergie - Sélection de matériaux de qualité garantissant confort et durabilité - Accompagnement sur-mesure pour la recherche et l’acquisition de votre terrain - Construction conforme à la réglementation en vigueur et à la norme RE2020 - Maisons certifiées NF HABITAT, gage de qualité, de performance et de confort Informations du terrain : À 10 minutes de Cergy magnifique terrain de 650 m² à Vauréal 95 une opportunité exceptionnelle ! Idéalement situé au cœur de la charmante commune de Vauréal, ce terrain rare offre un cadre de vie recherché, calme et verdoyant, tout en restant parfaitement connecté. Vous êtes à 10 minutes de Cergy, que ce soit en voiture ou en transports accès rapide au RER A, lignes de bus, pôles universitaires, grandes écoles, commerces, centres commerciaux, restaurants, équipements sportifs et culturels… tout est à portée de main. À proximité directe, les grands axes A15,A86 permettent de rejoindre Paris en seulement 39 minutes, en voiture comme en transports, facilitant le quotidien des actifs. Vauréal séduit par la qualité de ses écoles, sa vie de quartier dynamique, ses infrastructures modernes et sa tranquillité préservée un équilibre parfait entre confort urbain et nature. Un terrain de 650m² à Vauréal à ce prix, c’est tout simplement exceptionnel. Une opportunité rare à ne pas laisser passer. Demandez une étude gratuite et personnalisée de votre projet de construction ! Étude gratuite de votre projet de construction ! De nombreux terrains disponibles dans votre secteur. Informations légales : Maisons Sésame, constructeur de maisons individuelles, propose une sélection de terrains en collaboration avec ses partenaires fonciers, sous réserve de disponibilité. Il n’agit pas en tant que mandataire pour la vente de ces terrains. Nos maisons, certifiées NF Habitat et conformes à la réglementation thermique en vigueur, vous garantissent un habitat durable et économe en énergie. Découvrez un large choix de modèles adaptés aux besoins de toute la famille. Informations tarifaires : Les prix indiqués sont donnés à titre indicatif et n’incluent pas les frais annexes (frais de notaire, raccordements, etc.). Les visuels et prix présentés sont non contractuels. Pour plus de détails, consultez nos conditions en agence. N° ORIAS IOBSP 13007108 – RCS Versailles 388 867 426. Les informations sur les risques auxquels ce bien est exposé sont disponibles sur le site Géorisques : www.georisques.gouv.fr Cette annonce a été créée et diffusée avec le logiciel VITAHOME. Contactez Mahmoud KHELILI au 07 67 68 19 56 ou au 01 64 49 71 00 (Maisons Sésame - Agence de la Ville du Bois).

Proposé par MAISONS SÉSAME

Maison neuve - Projet de construction d'une maison 87 m² avec terrain à CERGY (95) à CERGY (95), prix 152 816 €
152 816 €
87 m²
1757 €/m²

Maison neuveCERGY (95)

A CERGY sur un terrain de 650 m², MAISONS SESAME vous propose de réaliser cette maison neuve d'une surface de 87 m² habitables avec 4 chambres. Le modèle ATRIA 90 GI est une maison à étage de 87 m², avec un garage intégré, offrant un espace de vie optimisé et agréable. Le rez-de-chaussée comprend un séjour lumineux, ouvert sur une cuisine fonctionnelle, créant un espace de vie convivial et fluide. Ce niveau dispose également d’un WC séparé, maximisant l’utilisation de chaque mètre carré. À l'étage, vous trouverez 4 chambres spacieuses, ainsi qu'une salle de bains, offrant un confort optimal pour toute la famille. Le modèle ATRIA 90 GI allie confort, praticité et espace, avec l'ajout d’un garage, répondant ainsi aux besoins d’une famille moderne. MAISONS SÉSAME vous propose les prestations suivantes : - Plans des maisons modulables et adaptables selon vos besoins et les spécificités de votre terrain - Large choix de systèmes de chauffage performants et économes en énergie - Sélection de matériaux de qualité garantissant confort et durabilité - Accompagnement sur-mesure pour la recherche et l’acquisition de votre terrain - Construction conforme à la réglementation en vigueur et à la norme RE2020 - Maisons certifiées NF HABITAT, gage de qualité, de performance et de confort Informations du terrain : À 10 minutes de Cergy magnifique terrain de 650 m² à Vauréal 95 une opportunité exceptionnelle ! Idéalement situé au cœur de la charmante commune de Vauréal, ce terrain rare offre un cadre de vie recherché, calme et verdoyant, tout en restant parfaitement connecté. Vous êtes à 10 minutes de Cergy, que ce soit en voiture ou en transports accès rapide au RER A, lignes de bus, pôles universitaires, grandes écoles, commerces, centres commerciaux, restaurants, équipements sportifs et culturels… tout est à portée de main. À proximité directe, les grands axes A15,A86 permettent de rejoindre Paris en seulement 39 minutes, en voiture comme en transports, facilitant le quotidien des actifs. Vauréal séduit par la qualité de ses écoles, sa vie de quartier dynamique, ses infrastructures modernes et sa tranquillité préservée un équilibre parfait entre confort urbain et nature. Un terrain de 650m² à Vauréal à ce prix, c’est tout simplement exceptionnel. Une opportunité rare à ne pas laisser passer. Demandez une étude gratuite et personnalisée de votre projet de construction ! Étude gratuite de votre projet de construction ! De nombreux terrains disponibles dans votre secteur. Informations légales : Maisons Sésame, constructeur de maisons individuelles, propose une sélection de terrains en collaboration avec ses partenaires fonciers, sous réserve de disponibilité. Il n’agit pas en tant que mandataire pour la vente de ces terrains. Nos maisons, certifiées NF Habitat et conformes à la réglementation thermique en vigueur, vous garantissent un habitat durable et économe en énergie. Découvrez un large choix de modèles adaptés aux besoins de toute la famille. Informations tarifaires : Les prix indiqués sont donnés à titre indicatif et n’incluent pas les frais annexes (frais de notaire, raccordements, etc.). Les visuels et prix présentés sont non contractuels. Pour plus de détails, consultez nos conditions en agence. N° ORIAS IOBSP 13007108 – RCS Versailles 388 867 426. Les informations sur les risques auxquels ce bien est exposé sont disponibles sur le site Géorisques : www.georisques.gouv.fr Cette annonce a été créée et diffusée avec le logiciel VITAHOME. Contactez Mahmoud KHELILI au 07 67 68 19 56 ou au 01 64 49 71 00 (Maisons Sésame - Agence de la Ville du Bois).

Proposé par MAISONS SÉSAME

Maison neuve - Projet de construction d'une maison 102 m² avec terrain à CERGY (95) à CERGY (95), prix 156 819 €
156 819 €
102 m²
1537 €/m²

Maison neuveCERGY (95)

A CERGY sur un terrain de 650 m², MAISONS SESAME vous propose de réaliser cette maison neuve d'une surface de 102 m² habitables avec 4 chambres. Le modèle ATRIA 105 est une maison à étage de 102 m², offrant un agencement pratique et fonctionnel pour une vie familiale agréable. Le rez-de-chaussée comprend une chambre, qui peut également être aménagée en bureau pour répondre aux besoins du télétravail. Ce niveau dispose également d'un cellier pratique pour le stockage, ainsi qu'une grande pièce de vie lumineuse ouverte sur la cuisine. Une salle de bains et un WC séparé complètent ce niveau. À l'étage, vous trouverez 3 chambres,et une salle de bains pour un confort optimal. Le modèle ATRIA 105 combine ainsi praticité, confort et espace, idéal pour une famille moderne. MAISONS SÉSAME vous propose les prestations suivantes : - Plans des maisons modulables et adaptables selon vos besoins et les spécificités de votre terrain - Large choix de systèmes de chauffage performants et économes en énergie - Sélection de matériaux de qualité garantissant confort et durabilité - Accompagnement sur-mesure pour la recherche et l’acquisition de votre terrain - Construction conforme à la réglementation en vigueur et à la norme RE2020 - Maisons certifiées NF HABITAT, gage de qualité, de performance et de confort Informations du terrain : À 10 minutes de Cergy magnifique terrain de 650 m² à Vauréal 95 une opportunité exceptionnelle ! Idéalement situé au cœur de la charmante commune de Vauréal, ce terrain rare offre un cadre de vie recherché, calme et verdoyant, tout en restant parfaitement connecté. Vous êtes à 10 minutes de Cergy, que ce soit en voiture ou en transports accès rapide au RER A, lignes de bus, pôles universitaires, grandes écoles, commerces, centres commerciaux, restaurants, équipements sportifs et culturels… tout est à portée de main. À proximité directe, les grands axes A15,A86 permettent de rejoindre Paris en seulement 39 minutes, en voiture comme en transports, facilitant le quotidien des actifs. Vauréal séduit par la qualité de ses écoles, sa vie de quartier dynamique, ses infrastructures modernes et sa tranquillité préservée un équilibre parfait entre confort urbain et nature. Un terrain de 650m² à Vauréal à ce prix, c’est tout simplement exceptionnel. Une opportunité rare à ne pas laisser passer. Demandez une étude gratuite et personnalisée de votre projet de construction ! Étude gratuite de votre projet de construction ! De nombreux terrains disponibles dans votre secteur. Informations légales : Maisons Sésame, constructeur de maisons individuelles, propose une sélection de terrains en collaboration avec ses partenaires fonciers, sous réserve de disponibilité. Il n’agit pas en tant que mandataire pour la vente de ces terrains. Nos maisons, certifiées NF Habitat et conformes à la réglementation thermique en vigueur, vous garantissent un habitat durable et économe en énergie. Découvrez un large choix de modèles adaptés aux besoins de toute la famille. Informations tarifaires : Les prix indiqués sont donnés à titre indicatif et n’incluent pas les frais annexes (frais de notaire, raccordements, etc.). Les visuels et prix présentés sont non contractuels. Pour plus de détails, consultez nos conditions en agence. N° ORIAS IOBSP 13007108 – RCS Versailles 388 867 426. Les informations sur les risques auxquels ce bien est exposé sont disponibles sur le site Géorisques : www.georisques.gouv.fr Cette annonce a été créée et diffusée avec le logiciel VITAHOME. Contactez Mahmoud KHELILI au 07 67 68 19 56 ou au 01 64 49 71 00 (Maisons Sésame - Agence de la Ville du Bois).

Proposé par MAISONS SÉSAME

Maison neuve - Projet de construction d'une maison 68 m² avec terrain à CERGY (95) à CERGY (95), prix 131 140 €
131 140 €
68 m²
1929 €/m²

Maison neuveCERGY (95)

A CERGY sur un terrain de 650 m², MAISONS SESAME vous propose de réaliser cette maison neuve d'une surface de 68 m² habitables avec 2 chambres. Le modèle ATRIA 67 est une maison à étage de 68 m², idéale pour ceux qui recherchent un espace de vie fonctionnel et bien agencé. Le rez-de-chaussée comprend un grand séjour lumineux, ouvert sur une cuisine spacieuse, créant une atmosphère conviviale et fluide. Ce niveau dispose également d’une salle de bains et d’un WC séparé, optimisant l’espace disponible pour un confort optimal. À l’étage, vous trouverez 2 chambres ainsi qu’un bureau, offrant de nombreuses possibilités d’aménagement pour répondre aux besoins d’une petite famille ou d’un couple. Le modèle ATRIA 67 allie praticité, confort et espace, pour un cadre de vie agréable. MAISONS SÉSAME vous propose les prestations suivantes : - Plans des maisons modulables et adaptables selon vos besoins et les spécificités de votre terrain - Large choix de systèmes de chauffage performants et économes en énergie - Sélection de matériaux de qualité garantissant confort et durabilité - Accompagnement sur-mesure pour la recherche et l’acquisition de votre terrain - Construction conforme à la réglementation en vigueur et à la norme RE2020 - Maisons certifiées NF HABITAT, gage de qualité, de performance et de confort Informations du terrain : À 10 minutes de Cergy magnifique terrain de 650 m² à Vauréal 95 une opportunité exceptionnelle ! Idéalement situé au cœur de la charmante commune de Vauréal, ce terrain rare offre un cadre de vie recherché, calme et verdoyant, tout en restant parfaitement connecté. Vous êtes à 10 minutes de Cergy, que ce soit en voiture ou en transports accès rapide au RER A, lignes de bus, pôles universitaires, grandes écoles, commerces, centres commerciaux, restaurants, équipements sportifs et culturels… tout est à portée de main. À proximité directe, les grands axes A15,A86 permettent de rejoindre Paris en seulement 39 minutes, en voiture comme en transports, facilitant le quotidien des actifs. Vauréal séduit par la qualité de ses écoles, sa vie de quartier dynamique, ses infrastructures modernes et sa tranquillité préservée un équilibre parfait entre confort urbain et nature. Un terrain de 650m² à Vauréal à ce prix, c’est tout simplement exceptionnel. Une opportunité rare à ne pas laisser passer. Demandez une étude gratuite et personnalisée de votre projet de construction ! Étude gratuite de votre projet de construction ! De nombreux terrains disponibles dans votre secteur. Informations légales : Maisons Sésame, constructeur de maisons individuelles, propose une sélection de terrains en collaboration avec ses partenaires fonciers, sous réserve de disponibilité. Il n’agit pas en tant que mandataire pour la vente de ces terrains. Nos maisons, certifiées NF Habitat et conformes à la réglementation thermique en vigueur, vous garantissent un habitat durable et économe en énergie. Découvrez un large choix de modèles adaptés aux besoins de toute la famille. Informations tarifaires : Les prix indiqués sont donnés à titre indicatif et n’incluent pas les frais annexes (frais de notaire, raccordements, etc.). Les visuels et prix présentés sont non contractuels. Pour plus de détails, consultez nos conditions en agence. N° ORIAS IOBSP 13007108 – RCS Versailles 388 867 426. Les informations sur les risques auxquels ce bien est exposé sont disponibles sur le site Géorisques : www.georisques.gouv.fr Cette annonce a été créée et diffusée avec le logiciel VITAHOME. Contactez Mahmoud KHELILI au 07 67 68 19 56 ou au 01 64 49 71 00 (Maisons Sésame - Agence de la Ville du Bois).

Proposé par MAISONS SÉSAME

Maison neuve - Projet de construction d'une maison 97 m² avec terrain à CERGY (95) à CERGY (95), prix 154 522 €
154 522 €
97 m²
1593 €/m²

Maison neuveCERGY (95)

A CERGY sur un terrain de 650 m², MAISONS SESAME vous propose de réaliser cette maison neuve d'une surface de 97 m² habitables avec 3 chambres. Le modèle SAPHIR 100 est une maison de 97 m² qui séduit par son design élégant, particulièrement souligné par son fronton sur la façade, ajoutant une touche de raffinement et de caractère à l'ensemble. Au rez-de-chaussée, la maison dispose d'un grand séjour lumineux, une cuisine ouverte et un bureau qui peut également servir d’espace pour télétravail, ainsi qu'un WC séparé pour plus de praticité. À l’étage, vous trouverez 3 chambres spacieuses, idéales pour accueillir toute la famille, ainsi qu'une salle de bain commune, offrant tout le confort nécessaire. Le SAPHIR 100 est un modèle parfait pour ceux qui recherchent une maison fonctionnelle avec un design moderne et soigné, tout en étant adaptée aux besoins contemporains, comme l'intégration d’un bureau pour télétravail. MAISONS SÉSAME vous propose les prestations suivantes : - Plans des maisons modulables et adaptables selon vos besoins et les spécificités de votre terrain - Large choix de systèmes de chauffage performants et économes en énergie - Sélection de matériaux de qualité garantissant confort et durabilité - Accompagnement sur-mesure pour la recherche et l’acquisition de votre terrain - Construction conforme à la réglementation en vigueur et à la norme RE2020 - Maisons certifiées NF HABITAT, gage de qualité, de performance et de confort Informations du terrain : À 10 minutes de Cergy magnifique terrain de 650 m² à Vauréal 95 une opportunité exceptionnelle ! Idéalement situé au cœur de la charmante commune de Vauréal, ce terrain rare offre un cadre de vie recherché, calme et verdoyant, tout en restant parfaitement connecté. Vous êtes à 10 minutes de Cergy, que ce soit en voiture ou en transports accès rapide au RER A, lignes de bus, pôles universitaires, grandes écoles, commerces, centres commerciaux, restaurants, équipements sportifs et culturels… tout est à portée de main. À proximité directe, les grands axes A15,A86 permettent de rejoindre Paris en seulement 39 minutes, en voiture comme en transports, facilitant le quotidien des actifs. Vauréal séduit par la qualité de ses écoles, sa vie de quartier dynamique, ses infrastructures modernes et sa tranquillité préservée un équilibre parfait entre confort urbain et nature. Un terrain de 650m² à Vauréal à ce prix, c’est tout simplement exceptionnel. Une opportunité rare à ne pas laisser passer. Demandez une étude gratuite et personnalisée de votre projet de construction ! Étude gratuite de votre projet de construction ! De nombreux terrains disponibles dans votre secteur. Informations légales : Maisons Sésame, constructeur de maisons individuelles, propose une sélection de terrains en collaboration avec ses partenaires fonciers, sous réserve de disponibilité. Il n’agit pas en tant que mandataire pour la vente de ces terrains. Nos maisons, certifiées NF Habitat et conformes à la réglementation thermique en vigueur, vous garantissent un habitat durable et économe en énergie. Découvrez un large choix de modèles adaptés aux besoins de toute la famille. Informations tarifaires : Les prix indiqués sont donnés à titre indicatif et n’incluent pas les frais annexes (frais de notaire, raccordements, etc.). Les visuels et prix présentés sont non contractuels. Pour plus de détails, consultez nos conditions en agence. N° ORIAS IOBSP 13007108 – RCS Versailles 388 867 426. Les informations sur les risques auxquels ce bien est exposé sont disponibles sur le site Géorisques : www.georisques.gouv.fr Cette annonce a été créée et diffusée avec le logiciel VITAHOME. Contactez Mahmoud KHELILI au 07 67 68 19 56 ou au 01 64 49 71 00 (Maisons Sésame - Agence de la Ville du Bois).

Proposé par MAISONS SÉSAME

Maison neuve - Projet de construction d'une maison 107 m² avec terrain à CERGY (95) à CERGY (95), prix 222 887 €
222 887 €
107 m²
2083 €/m²

Maison neuveCERGY (95)

A CERGY sur un terrain de 650 m², MAISONS SESAME vous propose de réaliser cette maison neuve d'une surface de 107 m² habitables avec 4 chambres. Le modèle EVOLUTIVE FAMILY 105 + GARAGE est une maison conçue pour évoluer avec les besoins de ses occupants au fil du temps. Avec une surface habitable de 107 m² et un garage de 15 m², elle combine fonctionnalité et style. Son toit plat moderne et le petit porche au-dessus de la porte d’entrée apportent une touche contemporaine et accueillante. Au rez-de-chaussée, l’entrée ouvre sur un spacieux séjour lumineux, une cuisine fonctionnelle et un cellier pratique. Une chambre parentale avec son propre dressing et une salle de douche privée viennent compléter cet étage. Un WC séparé et un garage spacieux ajoutent à la commodité de la maison. À l’étage, vous trouverez 3 chambres confortables, une salle de bains et un WC séparé, offrant à chaque membre de la famille son espace privé tout en favorisant l’harmonie de vie commune. MAISONS SÉSAME vous propose les prestations suivantes : - Plans des maisons modulables et adaptables selon vos besoins et les spécificités de votre terrain - Large choix de systèmes de chauffage performants et économes en énergie - Sélection de matériaux de qualité garantissant confort et durabilité - Accompagnement sur-mesure pour la recherche et l’acquisition de votre terrain - Construction conforme à la réglementation en vigueur et à la norme RE2020 - Maisons certifiées NF HABITAT, gage de qualité, de performance et de confort Informations du terrain : À 10 minutes de Cergy magnifique terrain de 650 m² à Vauréal 95 une opportunité exceptionnelle ! Idéalement situé au cœur de la charmante commune de Vauréal, ce terrain rare offre un cadre de vie recherché, calme et verdoyant, tout en restant parfaitement connecté. Vous êtes à 10 minutes de Cergy, que ce soit en voiture ou en transports accès rapide au RER A, lignes de bus, pôles universitaires, grandes écoles, commerces, centres commerciaux, restaurants, équipements sportifs et culturels… tout est à portée de main. À proximité directe, les grands axes A15,A86 permettent de rejoindre Paris en seulement 39 minutes, en voiture comme en transports, facilitant le quotidien des actifs. Vauréal séduit par la qualité de ses écoles, sa vie de quartier dynamique, ses infrastructures modernes et sa tranquillité préservée un équilibre parfait entre confort urbain et nature. Un terrain de 650m² à Vauréal à ce prix, c’est tout simplement exceptionnel. Une opportunité rare à ne pas laisser passer. Demandez une étude gratuite et personnalisée de votre projet de construction ! Étude gratuite de votre projet de construction ! De nombreux terrains disponibles dans votre secteur. Informations légales : Maisons Sésame, constructeur de maisons individuelles, propose une sélection de terrains en collaboration avec ses partenaires fonciers, sous réserve de disponibilité. Il n’agit pas en tant que mandataire pour la vente de ces terrains. Nos maisons, certifiées NF Habitat et conformes à la réglementation thermique en vigueur, vous garantissent un habitat durable et économe en énergie. Découvrez un large choix de modèles adaptés aux besoins de toute la famille. Informations tarifaires : Les prix indiqués sont donnés à titre indicatif et n’incluent pas les frais annexes (frais de notaire, raccordements, etc.). Les visuels et prix présentés sont non contractuels. Pour plus de détails, consultez nos conditions en agence. N° ORIAS IOBSP 13007108 – RCS Versailles 388 867 426. Les informations sur les risques auxquels ce bien est exposé sont disponibles sur le site Géorisques : www.georisques.gouv.fr Cette annonce a été créée et diffusée avec le logiciel VITAHOME. Contactez Mahmoud KHELILI au 07 67 68 19 56 ou au 01 64 49 71 00 (Maisons Sésame - Agence de la Ville du Bois).

Proposé par MAISONS SÉSAME

Maison neuve - Projet de construction d'une maison 49 m² avec terrain à CERGY (95) à CERGY (95), prix 82 098 €
82 098 €
49 m²
1675 €/m²

Maison neuveCERGY (95)

A CERGY sur un terrain de 650 m², MAISONS SESAME vous propose de réaliser cette maison neuve d'une surface de 49 m² habitables avec 2 chambres. Le modèle PERLE 3 – Édition Limitée- est une maison de plain-pied qui marie harmonieusement confort moderne et ouverture vers l’extérieur. Son salon-séjour traversant offre une belle luminosité naturelle et permet de profiter pleinement du jardin, apportant une véritable sensation d’espace et de bien-être. La cuisine ouverte, fonctionnelle et conviviale, s’intègre parfaitement à la pièce de vie pour créer un ensemble fluide et accueillant, idéal pour les moments partagés au quotidien. La PERLE 3 propose deux chambres confortables, adaptées aussi bien à une vie de couple, qu’à une petite famille ou à un projet de télétravail. Une salle de bains moderne complète ce cocon aux lignes simples et efficaces. Pensée pour répondre aux besoins d’aujourd’hui, cette maison séduit par sa luminosité, son agencement clair et son lien naturel avec le jardin. Un cadre apaisant et bien conçu pour savourer chaque jour à son rythme. MAISONS SÉSAME vous propose les prestations suivantes : - Plans des maisons modulables et adaptables selon vos besoins et les spécificités de votre terrain - Large choix de systèmes de chauffage performants et économes en énergie - Sélection de matériaux de qualité garantissant confort et durabilité - Accompagnement sur-mesure pour la recherche et l’acquisition de votre terrain - Construction conforme à la réglementation en vigueur et à la norme RE2020 - Maisons certifiées NF HABITAT, gage de qualité, de performance et de confort Informations du terrain : À 10 minutes de Cergy magnifique terrain de 650 m² à Vauréal 95 une opportunité exceptionnelle ! Idéalement situé au cœur de la charmante commune de Vauréal, ce terrain rare offre un cadre de vie recherché, calme et verdoyant, tout en restant parfaitement connecté. Vous êtes à 10 minutes de Cergy, que ce soit en voiture ou en transports accès rapide au RER A, lignes de bus, pôles universitaires, grandes écoles, commerces, centres commerciaux, restaurants, équipements sportifs et culturels… tout est à portée de main. À proximité directe, les grands axes A15,A86 permettent de rejoindre Paris en seulement 39 minutes, en voiture comme en transports, facilitant le quotidien des actifs. Vauréal séduit par la qualité de ses écoles, sa vie de quartier dynamique, ses infrastructures modernes et sa tranquillité préservée un équilibre parfait entre confort urbain et nature. Un terrain de 650m² à Vauréal à ce prix, c’est tout simplement exceptionnel. Une opportunité rare à ne pas laisser passer. Demandez une étude gratuite et personnalisée de votre projet de construction ! Étude gratuite de votre projet de construction ! De nombreux terrains disponibles dans votre secteur. Informations légales : Maisons Sésame, constructeur de maisons individuelles, propose une sélection de terrains en collaboration avec ses partenaires fonciers, sous réserve de disponibilité. Il n’agit pas en tant que mandataire pour la vente de ces terrains. Nos maisons, certifiées NF Habitat et conformes à la réglementation thermique en vigueur, vous garantissent un habitat durable et économe en énergie. Découvrez un large choix de modèles adaptés aux besoins de toute la famille. Informations tarifaires : Les prix indiqués sont donnés à titre indicatif et n’incluent pas les frais annexes (frais de notaire, raccordements, etc.). Les visuels et prix présentés sont non contractuels. Pour plus de détails, consultez nos conditions en agence. N° ORIAS IOBSP 13007108 – RCS Versailles 388 867 426. Les informations sur les risques auxquels ce bien est exposé sont disponibles sur le site Géorisques : www.georisques.gouv.fr Cette annonce a été créée et diffusée avec le logiciel VITAHOME. Contactez Mahmoud KHELILI au 07 67 68 19 56 ou au 01 64 49 71 00 (Maisons Sésame - Agence de la Ville du Bois).

Proposé par MAISONS SÉSAME

Maison neuve - Projet de construction d'une maison 49 m² avec terrain à CERGY (95) à CERGY (95), prix 91 393 €
91 393 €
49 m²
1865 €/m²

Maison neuveCERGY (95)

A CERGY sur un terrain de 650 m², MAISONS SESAME vous propose de réaliser cette maison neuve d'une surface de 49 m² habitables avec 1 chambres. Le modèle PERLE GI – Édition Limitée est une maison de plain-pied conçue pour celles et ceux qui recherchent simplicité, confort et praticité au quotidien. Compacte et bien pensée, elle offre une atmosphère cocooning où chaque mètre carré est optimisé. Le cœur de la maison se compose d’un salon-séjour lumineux avec cuisine ouverte, formant un espace de vie chaleureux, facile à vivre et agréable à aménager. Un lieu parfait pour se détendre, recevoir ou télétravailler dans un environnement calme et lumineux. La chambre unique, spacieuse et accueillante, est accompagnée d’une salle de bains confortable, créant un ensemble intime et reposant. Le véritable atout de ce modèle réside dans son garage intégré, qui offre un vaste espace de rangement, idéal pour stocker vélos, équipements, ou encore créer un coin atelier. La PERLE GI séduit par sa simplicité bien pensée, son ambiance apaisante et son sens pratique. Une maison qui va à l’essentiel, sans rien sacrifier au confort. MAISONS SÉSAME vous propose les prestations suivantes : - Plans des maisons modulables et adaptables selon vos besoins et les spécificités de votre terrain - Large choix de systèmes de chauffage performants et économes en énergie - Sélection de matériaux de qualité garantissant confort et durabilité - Accompagnement sur-mesure pour la recherche et l’acquisition de votre terrain - Construction conforme à la réglementation en vigueur et à la norme RE2020 - Maisons certifiées NF HABITAT, gage de qualité, de performance et de confort Informations du terrain : À 10 minutes de Cergy magnifique terrain de 650 m² à Vauréal 95 une opportunité exceptionnelle ! Idéalement situé au cœur de la charmante commune de Vauréal, ce terrain rare offre un cadre de vie recherché, calme et verdoyant, tout en restant parfaitement connecté. Vous êtes à 10 minutes de Cergy, que ce soit en voiture ou en transports accès rapide au RER A, lignes de bus, pôles universitaires, grandes écoles, commerces, centres commerciaux, restaurants, équipements sportifs et culturels… tout est à portée de main. À proximité directe, les grands axes A15,A86 permettent de rejoindre Paris en seulement 39 minutes, en voiture comme en transports, facilitant le quotidien des actifs. Vauréal séduit par la qualité de ses écoles, sa vie de quartier dynamique, ses infrastructures modernes et sa tranquillité préservée un équilibre parfait entre confort urbain et nature. Un terrain de 650m² à Vauréal à ce prix, c’est tout simplement exceptionnel. Une opportunité rare à ne pas laisser passer. Demandez une étude gratuite et personnalisée de votre projet de construction ! Étude gratuite de votre projet de construction ! De nombreux terrains disponibles dans votre secteur. Informations légales : Maisons Sésame, constructeur de maisons individuelles, propose une sélection de terrains en collaboration avec ses partenaires fonciers, sous réserve de disponibilité. Il n’agit pas en tant que mandataire pour la vente de ces terrains. Nos maisons, certifiées NF Habitat et conformes à la réglementation thermique en vigueur, vous garantissent un habitat durable et économe en énergie. Découvrez un large choix de modèles adaptés aux besoins de toute la famille. Informations tarifaires : Les prix indiqués sont donnés à titre indicatif et n’incluent pas les frais annexes (frais de notaire, raccordements, etc.). Les visuels et prix présentés sont non contractuels. Pour plus de détails, consultez nos conditions en agence. N° ORIAS IOBSP 13007108 – RCS Versailles 388 867 426. Les informations sur les risques auxquels ce bien est exposé sont disponibles sur le site Géorisques : www.georisques.gouv.fr Cette annonce a été créée et diffusée avec le logiciel VITAHOME. Contactez Mahmoud KHELILI au 07 67 68 19 56 ou au 01 64 49 71 00 (Maisons Sésame - Agence de la Ville du Bois).

Proposé par MAISONS SÉSAME


Illustration Maisons neuves en vente à proximité de Brignancourt (95)

Maisons neuves en vente à proximité de Brignancourt (95)

**Brignancourt (Val-d’Oise, 95)** : Ce charmant village du **Parc naturel régional du Vexin** se situe à **20 km de Pontoise** et **40 km de Paris**, offrant un cadre bucolique entre champs et forêts. Son **église Saint-Martin** (XIIIe siècle) et ses ruelles pavées en font un lieu préservé, idéal pour une vie paisible. **Optez pour une maison neuve** à Brignancourt : accès facile à l’A15, proximité des commodités (Gisors, Magny-en-Vexin) et cadre de vie authentique, parfait pour les familles et les amoureux de nature.

Autres villes actives à Val-d'oise (95)


Conseils pour l'achat d'un bien immobilier

Découvrez notre sélection de maisons neuves, synonymes de confort moderne et de sérénité. Trouvez votre futur chez-vous.

L'avantage d'une maison neuve

Choisir une maison neuve, c'est bénéficier des dernières normes énergétiques (RE2020) pour des économies durables, de frais de notaire réduits, et des garanties constructeur (parfait achèvement, décennale) pour une tranquillité d'esprit.

Nos types d'annonces

Explorez nos annonces : maisons clés en main prêtes à décorer, ou programmes terrain + maison pour personnaliser certains aspects.