

- Prix
- 280 000 €
Maison neuve • Fresnes Sur Marne (77)
- Nom et prix
- Votre future maison sur-mesure à Fresnes-sur-Marne • 280 000 €
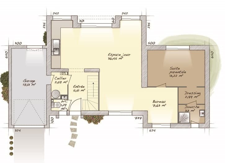
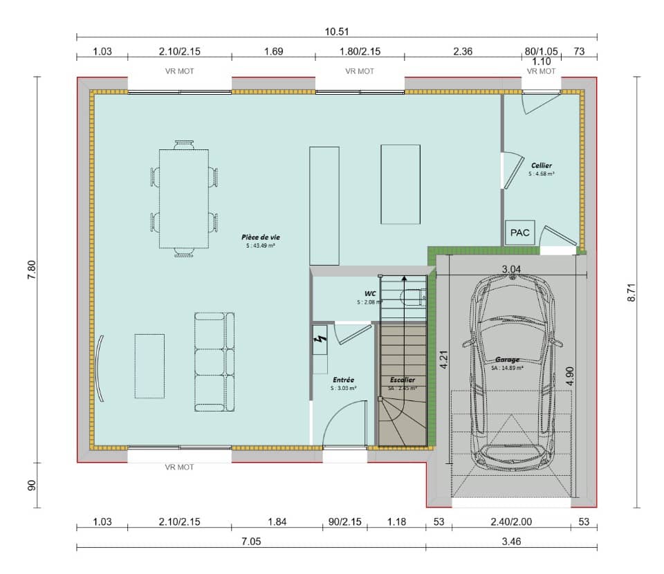
Maisons STILL vous propose un projet de construction d'une maison modulable de 90m², parfaitement conçue pour s'adapter à vos besoins et à votre style de vie. Situation idéale à Fresnes-sur-Marne, une charmante commune offrant un cadre de vie paisible tout en restant proche des commodités essentielles : Accès rapide à l'A104 et à la N3, facilitant vos déplacements vers Paris et Marne-la-Vallée Gares à proximité (ligne P) pour une connexion rapide à la capitale Écoles et commerces accessibles à pied pour un quotidien pratique Espaces verts et promenades le long du canal de l'Ourcq pour des moments de détente en pleine nature Votre maison en détail : 90m² habitables, agencement optimisé et personnalisable 3 chambres spacieuses, idéales pour toute la famille Séjour lumineux avec cuisine ouverte pour plus de convivialité Jardin privatif, parfait pour profiter des beaux jours Prestations de qualité, conformes aux dernières normes énergétiques Pour plus d'informations, contactez monsieur MABIOLA de Maisons STILL dès aujourd'hui au 06 24 60 79 67. Garanties et assurances obligatoires incluses (voir détails en agence). Prix indicatif hors peintures, hors options et hors frais annexes. Référence annonce : JM-FRESNES












