

- Prix
- 382 982 €
Maison neuve • Esbly (77)
- Nom et prix
- Terrain à bâtir () • 382 982 €
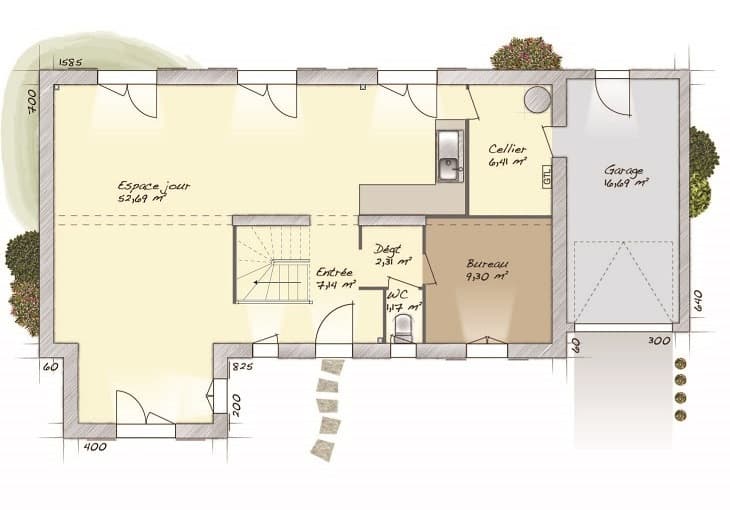
VENTE : maison F6 (98 m²) à Esbly MAISON 6 PIÈCES NEUVE - PROCHE DE MONTREUIL À 250 m de la gare, découvrez cette maison de 6 pièces de 98 m² et de 420 m² de terrain à vendre à Esbly (77450). Son intérieur est composé de quatre chambres, d'une cuisine et d'une salle de bains. Cette maison possède 2 niveaux. Elle est neuve. Il y a l'École Élémentaire du Centre, l'École Maternelle les Couleurs et le Collège Louis Braille à moins de 10 minutes à pied et deux structures d'accueil pour les tout-petits. Côté transports en commun, on trouve la gare Esbly à proximité, plaçant cette maison à 30 min de Paris en transilien. On trouve un tennis, des commerces, trois boulangeries, un supermarché, un bureau de poste et une boucherie-charcuterie à quelques minutes à peine. Elle est proposée à l'achat pour 382 982 €. Contactez Sébastien DARTEVELLE (06-24-63-58-60) pour toute question sur la maison, sur les démarches à suivre ou sur les modalités de vente. Maisons Balency Dammartin-en-Goële vous accompagne à toutes les étapes de votre projet et dans tous vos projets immobiliers.











