

- Prix
- 156 819 €
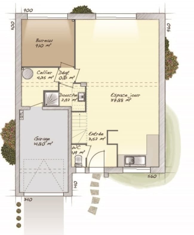
Maison neuve • ARCUEIL (94)
- Nom et prix
- Projet de construction d'une maison 102 m² avec terrain à ARCUEIL (94) • 156 819 €
A ARCUEIL sur un terrain de 245 m², MAISONS SESAME vous propose de réaliser cette maison neuve d'une surface de 102 m² habitables avec 4 chambres. Le modèle ATRIA 105 est une maison à étage de 102 m², offrant un agencement pratique et fonctionnel pour une vie familiale agréable. Le rez-de-chaussée comprend une chambre, qui peut également être aménagée en bureau pour répondre aux besoins du télétravail. Ce niveau dispose également d'un cellier pratique pour le stockage, ainsi qu'une grande pièce de vie lumineuse ouverte sur la cuisine. Une salle de bains et un WC séparé complètent ce niveau. À l'étage, vous trouverez 3 chambres,et une salle de bains pour un confort optimal. Le modèle ATRIA 105 combine ainsi praticité, confort et espace, idéal pour une famille moderne. MAISONS SÉSAME vous propose les prestations suivantes : - Plans des maisons modulables et adaptables selon vos besoins et les spécificités de votre terrain - Large choix de systèmes de chauffage performants et économes en énergie - Sélection de matériaux de qualité garantissant confort et durabilité - Accompagnement sur-mesure pour la recherche et l’acquisition de votre terrain - Construction conforme à la réglementation en vigueur et à la norme RE2020 - Maisons certifiées NF HABITAT, gage de qualité, de performance et de confort Demandez une étude gratuite et personnalisée de votre projet de construction ! Étude gratuite de votre projet de construction ! De nombreux terrains disponibles dans votre secteur. Informations légales : Maisons Sésame, constructeur de maisons individuelles, propose une sélection de terrains en collaboration avec ses partenaires fonciers, sous réserve de disponibilité. Il n’agit pas en tant que mandataire pour la vente de ces terrains. Nos maisons, certifiées NF Habitat et conformes à la réglementation thermique en vigueur, vous garantissent un habitat durable et économe en énergie. Découvrez un large choix de modèles adaptés aux besoins de toute la famille. Informations tarifaires : Les prix indiqués sont donnés à titre indicatif et n’incluent pas les frais annexes (frais de notaire, raccordements, etc.). Les visuels et prix présentés sont non contractuels. Pour plus de détails, consultez nos conditions en agence. N° ORIAS IOBSP 13007108 – RCS Versailles 388 867 426. Les informations sur les risques auxquels ce bien est exposé sont disponibles sur le site Géorisques : www.georisques.gouv.fr Cette annonce a été créée et diffusée avec le logiciel VITAHOME. Contactez Mme FORTES SEMEDO au 06 35 53 11 16 (Maisons Sésame - Agence de le Perreux sur Marne).














