

- Prix
- 270 000 €
Maison neuve • Cagny (14)
- Nom et prix
- Terrain à bâtir () • 270 000 €
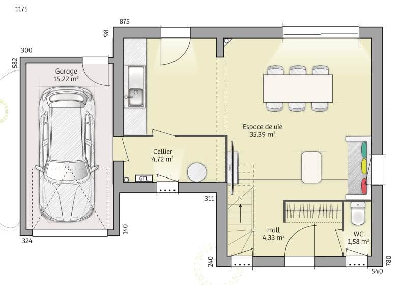
VENTE d'une maison de 5 pièces (90 m²) à Cagny PROCHE CENTRE-VILLE - MAISON 5 PIÈCES NEUVE À vendre : à 15 km de la Manche et à quelques kilomètres de Caen, nous sommes ravis de vous présenter cette maison de 5 pièces de 90 m² proche du centre-ville de Cagny (14630). Son intérieur propose trois chambres, une cuisine et une salle de bains. Le terrain du bien s'étend sur 400 m². Cette maison comporte 2 niveaux. Elle est neuve. Il y a une école primaire dans la commune. Côté transports en commun, on trouve la gare Frénouville-Cagny à moins de 10 minutes à pied. L'autoroute A13 et les nationales N814 et N158 sont accessibles à moins de 6 km. Il y a un tennis, deux boulangeries, quatre commerces, un bureau de poste, une boucherie-charcuterie et une épicerie à proximité. Elle est à vendre pour la somme de 270 000 €. Prenez contact avec Francois LAMY (06-35-39-35-17) pour toute information sur la maison, sur les démarches à suivre ou sur les modalités de vente.










