

- Prix
- 315 400 €
Maison neuve • Guidel (56)
- Nom et prix
- Terrain à bâtir () • 315 400 €
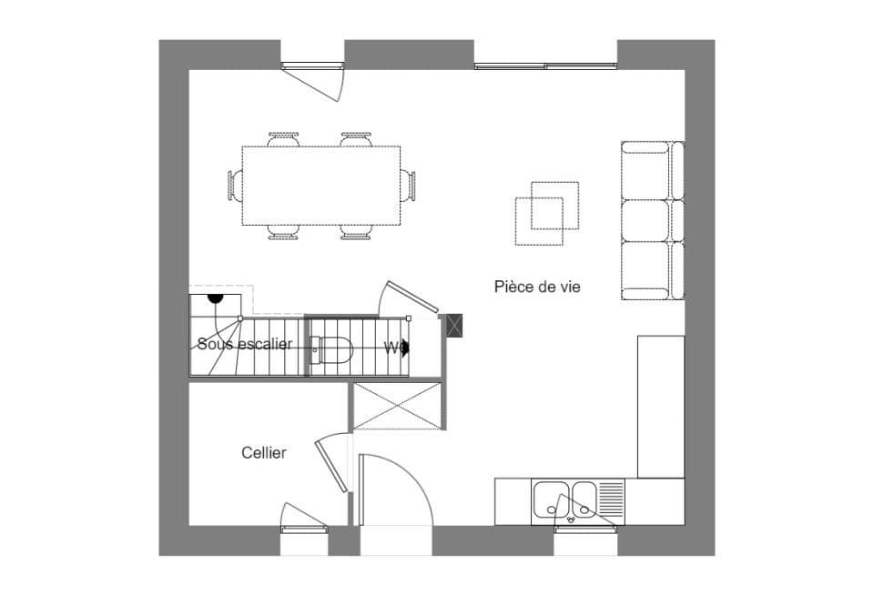
Guidel : Maison T4 (82 m²) neuve à vendre EMPLACEMENT PRIVILÉGIÉ - À 10 KM DE LORIENT Nous vous proposons cette maison neuve de 4 pièces, située à Guidel (56520), à quelques kilomètres de Lorient et du littoral atlantique. D'une superficie de 82 m², elle dispose d'un terrain de 250 m². Elle se compose de 3 chambres, d'une cuisine et d'une salle de bains, sur deux niveaux. Dans un quartier prisé, cette maison est idéale pour une famille. Elle est proche des écoles, des commerces et de nombreuses commodités, tout en étant à 3 km de la nationale N165 pour un accès rapide à Lorient. Prix de vente : 315 400 € Pour plus d'informations, contactez Anne-Sophie LAPART au 02-97-21-63-96.