

- Prix
- 297 550 €
Maison neuve • Brasseuse (60)
- Nom et prix
- Terrain à bâtir Brasseuse (60810) • 297 550 €
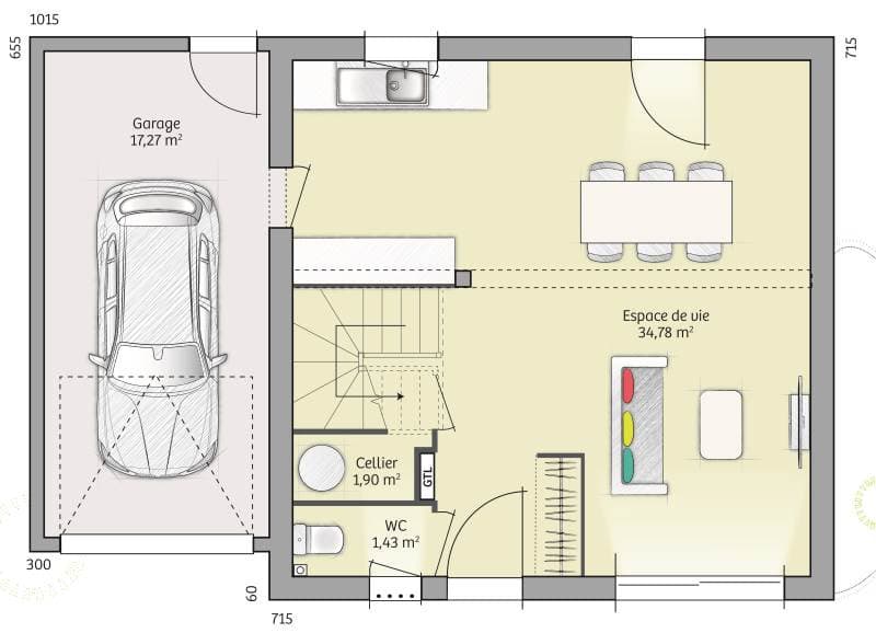
A 3 minutes de Brasseuse , sur un terrain viabilisé de 504m² , nous vous proposons cette maison de type R+1 : Une véritable entrée avec placard attenant , cellier et wc , escalier bois unr demi tournant , séjour traversant et cuisine américaine . A L 'étage , 3 chambres avec rangements intégrés , salle d'eau équipée . De nombreuses prestations incluses : Pièces de vie carrelées , carrelage dans vos pièces de vie , matériaux innovants, normes RE 2020; plans personnalisables et modifiables . Frais annexes inclus (Viabilisation , raccordements , enlèvements des terres , puisards , chemin d'accès ..) Accompagnement intégral , financement , étude technique du terrain , gestion administrative . Rendez vous en agence ou à votre domicile VERON ANTHONY /07/77/85/58/88/