

- Prix
- 247 000 €
Maison neuve • Lignan-sur-Orb (34)
- Nom et prix
- Terrain à bâtir () • 247 000 €
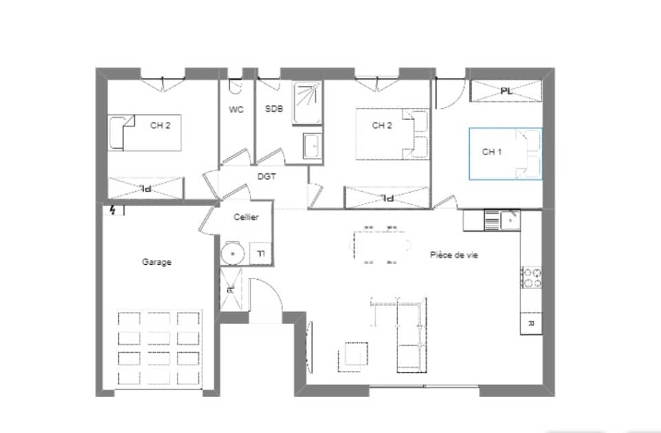
PROJET DE CONSTRUCTION - Maison de 3 pièces (71 m²) à Lignan-sur-Orb MAISON 3 PIÈCES - PROCHE DE BÉZIERS À vendre : localisée à 20 km de la mer Méditerranée et à 6 km de Béziers, Maisons France Confort Béziers vous propose cette maison de 3 pièces de plain-pied de 71 m² et de 326 m² de terrain à Lignan-sur-Orb (34490). Son intérieur comporte deux chambres, une cuisine, un cellier, une salle de bains et un garage. (Carrelage inclus dans toutes les pièces / Raccordements inclus). Il y a l'École Primaire Publique Jean Moulin à moins de 10 minutes à pied. Côté transports, on trouve la gare Béziers à moins de 10 minutes en voiture. Les autoroutes A75 et A9 sont accessibles à moins de 10 km. Il y a une bibliothèque, deux tennis, deux boulangeries, quatre commerces, un supermarché, deux boucheries-charcuteries et une poissonnerie à quelques minutes du logement. Son prix de vente est de 247 000 €. Pour plus d'information contacter (Anthony BALLESTER : 06.27.21.51.55) Maisons France Confort Béziers pour échanger sur votre projet et réaliser une étude gratuite. (Plan personnalisable). Tous nos ouvrages sont réalisés sur-mesure en fonction de vos attentes et de nos échanges avec vous ainsi que dans le respect de la règlementation RE 2020. Ce projet comporte les garanties suivantes: Contrat de construction CCMI. Dommage/Ouvrage. RC Garantie décennale. Parfaite achèvement. Etude de sol G2. Prix et délais convenu. Garantie financière Pour votre tranquillité nous nous occupons de toutes les formalités administratives.











