

- Prix
- 169 782 €
Maison neuve • 9 rue du mosnil (91)
- Nom et prix
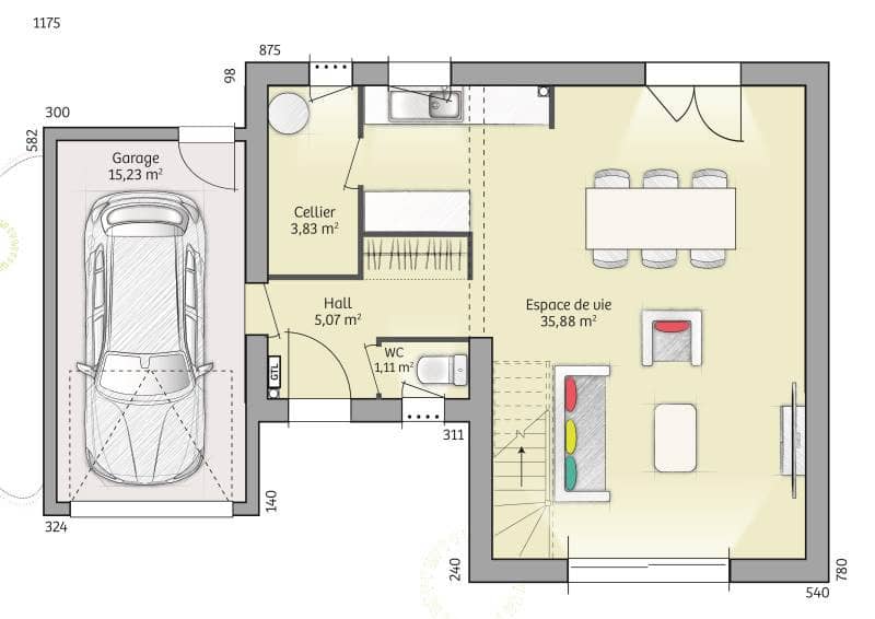
- Projet de construction d'une maison 110 m² avec terrain à BAULNE (91) • 169 782 €
Profitez du retour du Prêt à Taux Zéro et des conditions avantageuses du neuf pour réduire vos coûts mensuels ! Votre maison labelisée NF et RE 2020 avec jardin ! Maisons SESAME, constructeur de maisons individuelles de qualité sur toute l'Ile de France, vous propose de faire construire votre maison sur mesure sur la commune de BAULNE. Sur un très beau terrain de 429m², nous vous proposons ce modèle de type R+1 de 110 m² idéalement conçu pour répondre à vos besoins avec un espace de vie généreux pour toute la famille tout en restant facile à entretenir. Vous bénéficierez également de 4 chambres spacieuses, d'une SDB, de 2 WC et d'un garage intégré. Nous accordons une attention particulière à chaque détail pour vous offrir une maison à la fois esthétique et durable. MAISONS SÉSAME vous propose les prestations suivantes : - Matériaux de qualité et finitions soignées : Menuiserie ALU, volets roulants motorisés, pompe à chaleur bi-service, carrelage 45 x 45, cloison PLACOSTYL, isolation haute performance HYBRIS, gouttières alu, etc. - Plans des maisons modulables et adaptables selon vos besoins et les spécificités de votre terrain - Large choix de systèmes de chauffage performants et économes en énergie - Sélection de matériaux de qualité garantissant confort et durabilité - Accompagnement sur-mesure pour la recherche et l’acquisition de votre terrain - Construction conforme à la réglementation en vigueur et à la norme RE2020 - Maisons certifiées NF HABITAT, gage de qualité, de performance et de confort - Garantie dommage ouvrage, garantie de parfait achèvement, garantie à prix et délai convenu, Provision BT 01, carrelage, travaux annexes et viabilités INCLUS - hors frais de notaire, voir conditions en agence). Gare à seulement 3 min, écoles et commerces sur place. Étude gratuite de votre projet de construction ! De nombreux terrains disponibles dans votre secteur. Informations légales : Maisons Sésame, constructeur de maisons individuelles, propose une sélection de terrains en collaboration avec ses partenaires fonciers, sous réserve de disponibilité. Il n’agit pas en tant que mandataire pour la vente de ces terrains. Nos maisons, certifiées NF Habitat et conformes à la réglementation thermique en vigueur, vous garantissent un habitat durable et économe en énergie. Découvrez un large choix de modèles adaptés aux besoins de toute la famille. Informations tarifaires : Les prix indiqués sont donnés à titre indicatif et n’incluent pas les frais de notaire. Les visuels et prix présentés sont non contractuels. Pour plus de détails, consultez nos conditions en agence. N° ORIAS IOBSP 13007108 – RCS Versailles 388 867 426. Les informations sur les risques auxquels ce bien est exposé sont disponibles sur le site Géorisques : www.georisques.gouv.fr Cette annonce a été créée et diffusée avec le logiciel VITAHOME. Contactez Benoit ORTIN au 06 11 90 69 47 ou au 01 69 05 14 14 (Maisons Sésame - Agence de Juvisy-sur-Orge).












