

- Prix
- 304 900 €
Maison neuve • Le Châtelet-en-Brie (77)
- Nom et prix
- Terrain à bâtir Le Châtelet-en-Brie (77820) • 304 900 €
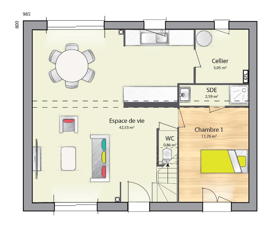
Contactez Guillaume Bordes de l'agence Maisons Evolution de Mareuil-lès-Meaux au 06.22.93.94.71 pour avoir plus d'informations sur ce projet. Très jolie maison à étage de 124 m² habitables avec garage accolé idéalement située sur la commune du Châtelet en Brie. Elle est composée de 5 chambres au total dont une grande suite parentale avec salle d'eau, de 3 salles de bains au total, de deux WC séparés et d'un grand salon-séjour lumineux avec cuisine ouverte donnant sur un cellier puis sur le garage. Les plans sont entièrement modifiables selon vos souhaits, en agence ou visioconférence. Nous vous proposons un véritable accompagnement de qualité tout au long de votre projet. Dessinons ensemble votre future maison ! Tel : 06.22.93.94.71











