

- Prix
- 153 913 €
Maison neuve • Route de Boran (95)
- Nom et prix
- Projet de construction d'une maison 88 m² avec terrain à VIARMES (95) • 153 913 €
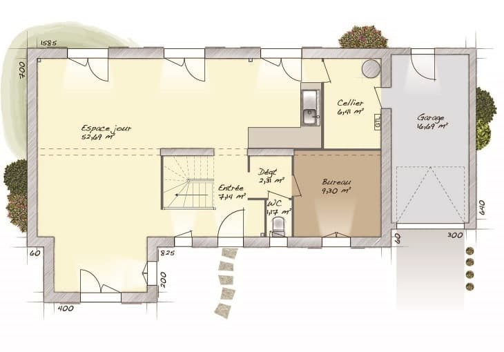
A VIARMES sur un terrain de 1254 m², MAISONS SESAME vous propose de réaliser cette maison neuve d'une surface de 88 m² habitables avec 4 chambres. Le modèle MIRA 90 est une maison à combles aménagés de 88 m², idéale pour les familles recherchant un espace de vie spacieux et pratique. Ce modèle comprend six pièces, dont quatre chambres, offrant ainsi de nombreuses possibilités d’aménagement. Au rez-de-chaussée, les espaces de vie sont généreux et bien distribués, avec un séjour lumineux qui s'ouvre sur une cuisine fonctionnelle. Cette disposition permet de profiter d’un grand espace commun, tout en offrant un maximum de confort. Une des chambres est située au rez-de-chaussée, offrant la possibilité d’être utilisée comme chambre, bureau ou espace polyvalent selon les besoins. La salle de bains, également située au rez-de-chaussée, complète harmonieusement ce niveau. À l'étage, les trois autres chambres sont aménagées sous les combles, offrant un cadre chaleureux et intime, parfait pour une famille. Ce modèle MIRA 90 est conçu pour répondre aux besoins d'une famille tout en offrant un espace optimisé et fonctionnel. MAISONS SÉSAME vous propose les prestations suivantes : - Plans des maisons modulables et adaptables selon vos besoins et les spécificités de votre terrain - Large choix de systèmes de chauffage performants et économes en énergie - Sélection de matériaux de qualité garantissant confort et durabilité - Accompagnement sur-mesure pour la recherche et l’acquisition de votre terrain - Construction conforme à la réglementation en vigueur et à la norme RE2020 - Maisons certifiées NF HABITAT, gage de qualité, de performance et de confort Demandez une étude gratuite et personnalisée de votre projet de construction ! Étude gratuite de votre projet de construction ! De nombreux terrains disponibles dans votre secteur. Informations légales : Maisons Sésame, constructeur de maisons individuelles, propose une sélection de terrains en collaboration avec ses partenaires fonciers, sous réserve de disponibilité. Il n’agit pas en tant que mandataire pour la vente de ces terrains. Nos maisons, certifiées NF Habitat et conformes à la réglementation thermique en vigueur, vous garantissent un habitat durable et économe en énergie. Découvrez un large choix de modèles adaptés aux besoins de toute la famille. Informations tarifaires : Les prix indiqués sont donnés à titre indicatif et incluent les frais annexes hormis les frais de notaire. Les visuels et prix présentés sont non contractuels. Pour plus de détails, consultez nos conditions en agence. N° ORIAS IOBSP 13007108 – RCS Versailles 388 867 426. Les informations sur les risques auxquels ce bien est exposé sont disponibles sur le site Géorisques : www.georisques.gouv.fr Cette annonce a été créée et diffusée avec le logiciel VITAHOME. Contactez Jeremy DEBERLES au 06 23 27 99 34 ou au 01 84 29 34 10 (Maisons Sésame - Agence de Baillet en France).












