

- Prix
- 325 000 €
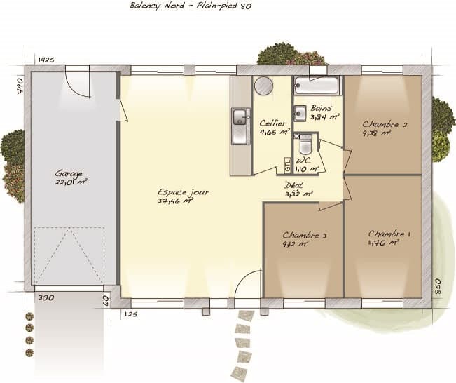
Maison neuve • Belle-Église (60)
- Nom et prix
- Terrain à bâtir () • 325 000 €
Terrain à bâtir entièrement viabilisé sur la commune de BELLE EGLISE, située à 5 minutes de CHAMBLY, d'une superficie de 460 m²,plat, idéalement situé. Exemple de projet maison de 90 m² de surface habitable avec un garage intégré, 3 chambres et 1 salle de bain à l'étage. Tous nos projets sont entièrement réalisés sur-mesure, de nombreuses prestations incluses: baies coulissantes en aluminium, volets roulants intégrés à la maçonnerie (non-apparents) motorisés. Entrée, cuisine, pièce de vie, cellier et pièces d'eau carrelés, maison prête à décorer, clef en main. Pompe à chaleur ou pompe à chaleur hybride (gaz) dernière génération (classe énergétique A+), plancher chauffant RDC (et ETAGE), sèche-serviettes, plusieurs choix de menuiseries intérieures, construction en brique. RE 2020. Projet terrain + maison + frais annexes. Pour tout renseignement contacter XAVIER de l'agence Maisons France Confort : 06/16/27/53/27











