

- Prix
- 498 000 €
Maison neuve • Ozoir-la-Ferrière (77)
- Nom et prix
- Terrain à bâtir () • 498 000 €
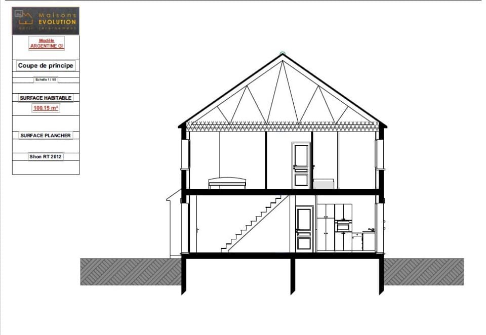
VENTE d'une maison NEUVE de 5 pièces (100 m²) à Ozoir-la-Ferrière (77330) par BARRIONUEVO VIRGINIE 06.19.89.86.67 IDÉALEMENT SITUÉE - Cette maison comporte 2 niveaux. Elle est composée de quatre chambres, d'une cuisine et d'une salle de bains. Cette maison se trouve dans un quartier recherché proche des commerces. Il y a tous les types d'écoles à moins de 10 minutes à pied, tout comme une crèche. Niveau transports en commun, on trouve les lignes de RER E et A. Elle est proposée à l'achat pour 498 000 €. Contactez Virginie BARRIONUEVO (06-19-89-86-67) pour toute question sur la propriété. Faites de vos projets immobiliers une réalité !











