

- Prix
- 290 274 €
Maison neuve • Marcilly (77)
- Nom et prix
- Terrain à bâtir () • 290 274 €
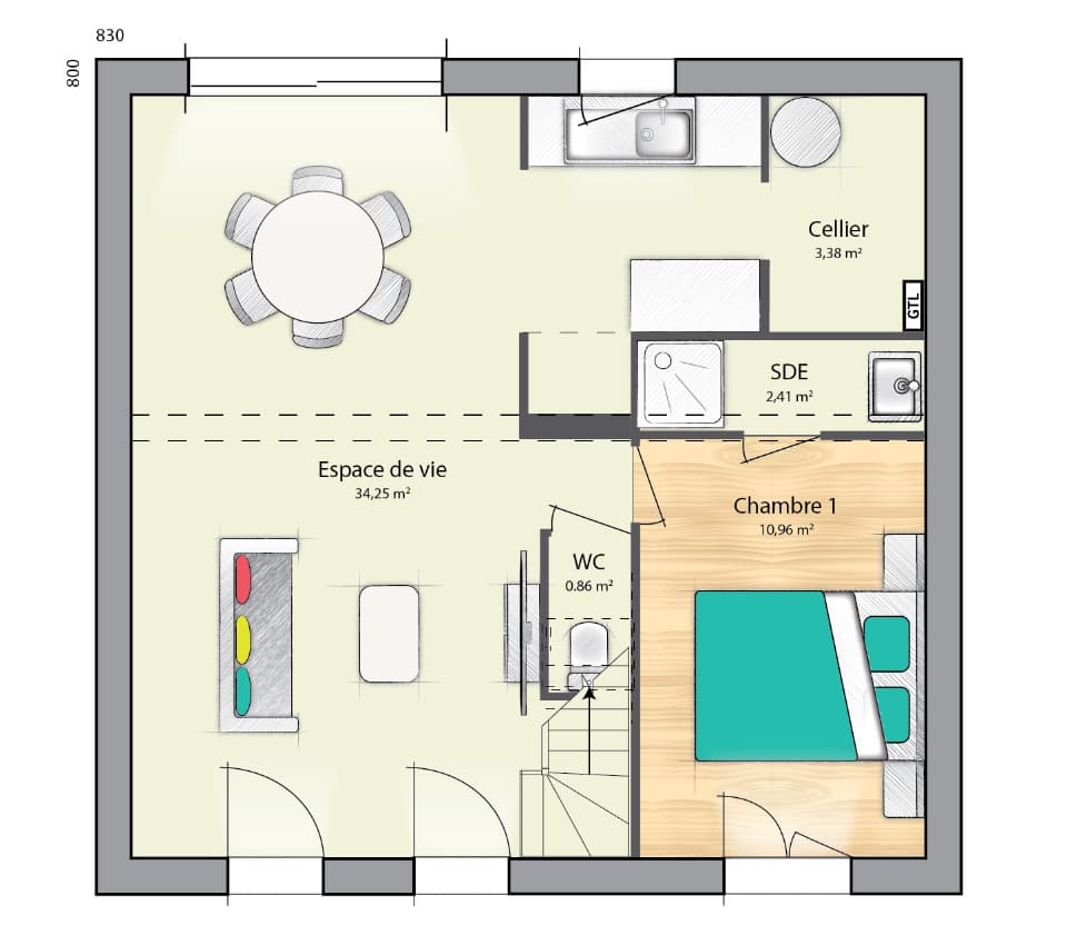
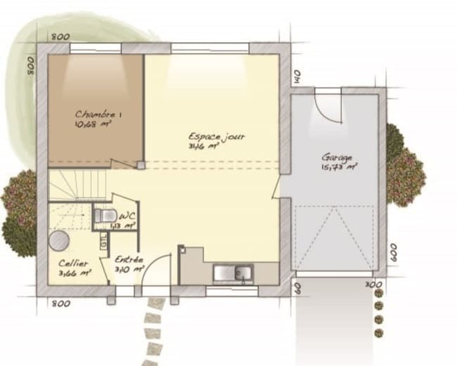
Maison T7 (102 m²) à vendre à Marcilly MAISON 7 PIÈCES NEUVE - PROCHE D'AULNAY-SOUS-BOIS À côté du Transilien P (gare de Meaux, 25 min de Paris), en vente à Marcilly (77139), nous sommes ravis de vous présenter cette maison de 7 pièces de 102 m². Elle est composée de cinq chambres, d'une cuisine et de deux salles de bains. Le terrain de la propriété s'étend sur 400 m². Cette maison compte 2 niveaux. Elle est neuve. Une école élémentaire est implantée dans le quartier. Niveau transports en commun, il y a la gare Meaux à moins de 10 minutes en voiture. Elle est à vendre pour la somme de 290 274 €. Contactez Sébastien DARTEVELLE (06-24-63-58-60) pour toute information sur le bien. Donnez vie à vos projets immobiliers avec Maisons Balency Dammartin-en-Goële.











