

- Prix
- 444 495 €
Maison neuve • Sartrouville (78)
- Nom et prix
- Terrain à bâtir Sartrouville (78500) • 444 495 €
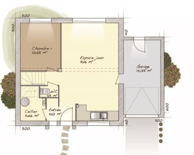
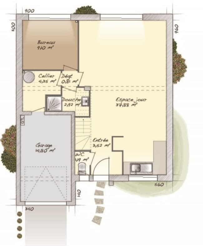
Maison F6 (98 m²) à vendre à Sartrouville MAISON 6 PIÈCES NEUVE À deux pas de la gare (Paris à 15 min avec le Transilien J), en vente à Sartrouville (78500), Maisons Balency Moisselles vous propose cette maison de 6 pièces de 98 m² et de 319 m² de terrain. Il s'agit d'une maison de 2 niveaux. Son intérieur dispose de quatre chambres, d'une cuisine et d'une salle de bains. Cette maison est neuve. Il y a des établissements scolaires de tous niveaux à moins de 10 minutes à pied. Niveau transports, on trouve deux lignes de RER (A et C) ainsi que 45 gares à moins de 10 minutes en voiture. Il y a un tennis, des commerces, des boulangeries, deux supermarchés, un bureau de poste et des épiceries à quelques minutes à peine. Elle est proposée à l'achat pour 444 495 €. Contactez notre agence (DUCOS Denis : 06-80-06-50-40) pour plus de renseignements sur cette propriété. Maisons Balency Moisselles vous accompagne dans tous vos projets immobiliers et dans toutes vos démarches.











