
Maison neuve • chemin des coutures (77)
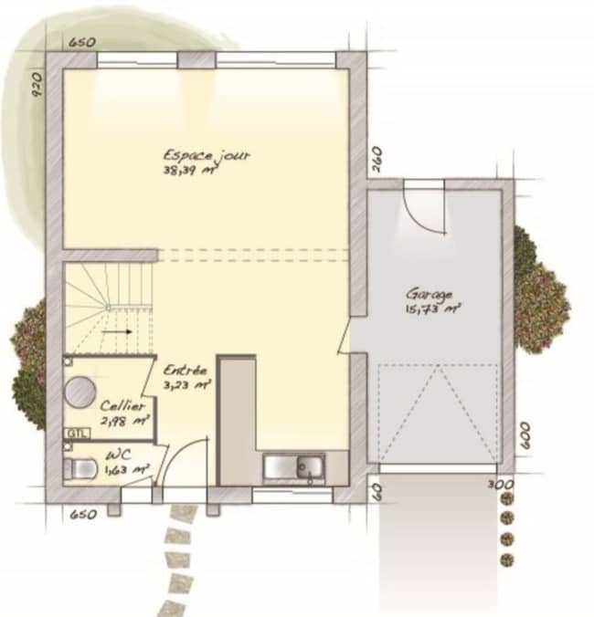
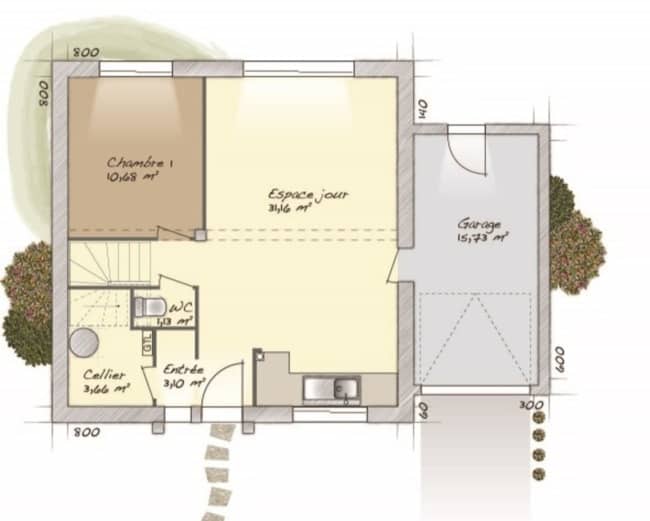
Votre Conseiller Commercial Pierre DAMIENS 07/83/63/33/65 vous propose : A QUINCY-VOISINS sur un terrain de 171 m², MAISONS SESAME vous propose de réaliser cette maison neuve d'une surface de 87 m² habitables avec 3 chambres. Le modèle ATRIA 90 est une maison à étage de 87 m², offrant un espace de vie optimisé pour le confort et la praticité. Le rez-de-chaussée comprend une grande entrée, menant à un vaste séjour lumineux, ouvert sur une cuisine spacieuse. Ce niveau dispose également d’une salle de bains et d’un WC séparé, maximisant l’espace disponible pour un quotidien pratique. À l’étage, les 3 chambres sont agencées de manière à offrir un cadre intime et confortable pour chaque membre de la famille. Le modèle ATRIA 90 allie confort, fonctionnalité et espace, pour une maison qui répond parfaitement aux besoins d’une famille moderne. MAISONS SÉSAME vous propose les prestations suivantes : - Plans des maisons modulables et adaptables selon vos besoins et les spécificités de votre terrain - Large choix de systèmes de chauffage performants et économes en énergie - Sélection de matériaux de qualité garantissant confort et durabilité - Accompagnement sur-mesure pour la recherche et l’acquisition de votre terrain - Construction conforme à la réglementation en vigueur et à la norme RE2020 - Maisons certifiées NF HABITAT, gage de qualité, de performance et de confort Informations du terrain : Proche A4, Nombreuses lignes de bus pour Val d'europe (RER) et Meaux (Ligne P), petite ville dynamique avec commerces (épicerie, poste, restaurants) écoles et nombreuses associations Demandez une étude gratuite et personnalisée de votre projet de construction ! Étude gratuite de votre projet de construction ! De nombreux terrains disponibles dans votre secteur. Informations légales : Maisons Sésame, constructeur de maisons individuelles, propose une sélection de terrains en collaboration avec ses partenaires fonciers, sous réserve de disponibilité. Il n’agit pas en tant que mandataire pour la vente de ces terrains. Nos maisons, certifiées NF Habitat et conformes à la réglementation thermique en vigueur, vous garantissent un habitat durable et économe en énergie. Découvrez un large choix de modèles adaptés aux besoins de toute la famille. Informations tarifaires : Les prix indiqués sont donnés à titre indicatif et n’incluent pas les frais annexes (frais de notaire, raccordements, etc.). Les visuels et prix présentés sont non contractuels. Pour plus de détails, consultez nos conditions en agence. N° ORIAS IOBSP 13007108 – RCS Versailles 388 827 426. Cette annonce a été créée et diffusée avec le logiciel VITAHOME. Contactez Pierre DAMIENS au 07 83 63 33 65 ou au 01 60 09 18 88 (Maisons Sésame - Agence de Mareuil les Meaux).
Proposé par MAISONS SÉSAME







