

- Prix
- 273 500 €
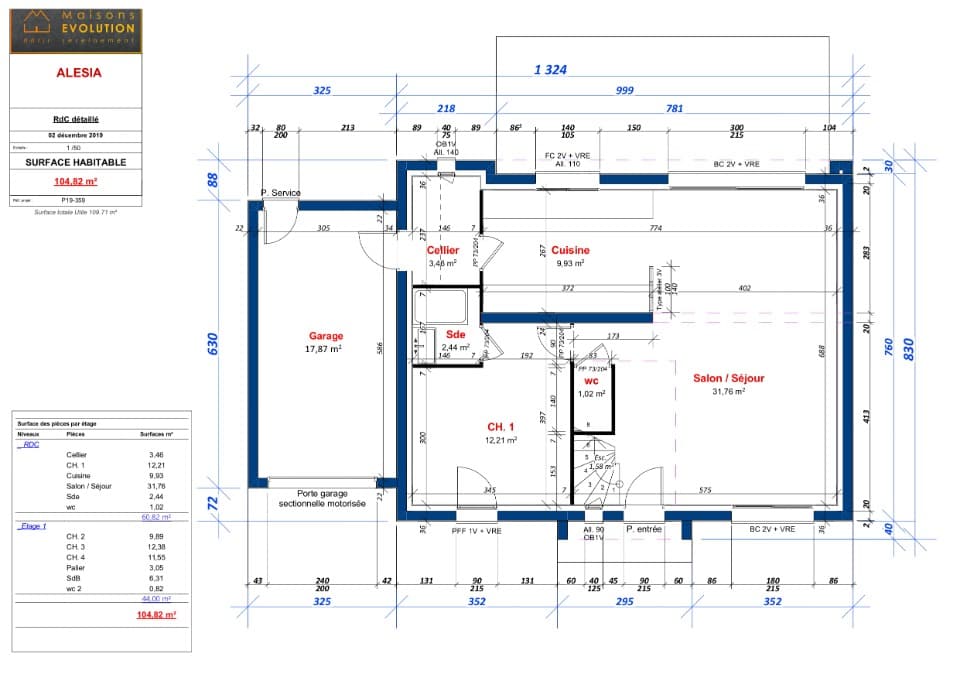
Maison neuve • Vaucourtois (77)
- Nom et prix
- Terrain à bâtir Vaucourtois (77580) • 273 500 €
Contactez Guillaume Bordes de l'agence Maisons Evolution de Mareuil-lès-Meaux au 06.22.93.94.71 pour avoir plus d'informations sur ce projet. Maison de plain-pied d'une superficie de 81 m² habitables avec garage accolé idéalement située sur la commune de Vaucourtois. Elle est composée de 3 chambres, d'une grande salle de bains, et d'un grand salon-séjour lumineux avec cuisine ouverte, cellier et garage. Les plans sont modifiables selon vos souhaits, en agence ou visioconférence. Nous vous proposons un véritable accompagnement de qualité tout au long de votre projet. Dessinons ensemble votre future maison ! Tel: 06.22.93.94.71











