

- Prix
- 498 000 €
Maison neuve • Jossigny (77)
- Nom et prix
- Terrain à bâtir Jossigny (77600) • 498 000 €
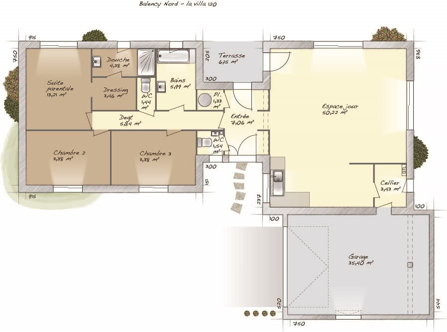
VENTE : maison F5 (101 m²) à Jossigny MAISON 5 PIÈCES NEUVE - PROCHE DE PARIS En vente : à deux pas de la station Val d'Europe (Paris à 30 min par le RER A), à Jossigny (77600), Maisons Balency Saint-Maur-des-Fossés vous propose cette maison de 5 pièces de plain-pied de 101 m² et de 9 100 m² de terrain. Elle inclut quatre chambres, une cuisine et une salle de bains. Cette maison est neuve. Une école primaire est implantée dans le quartier. Niveau transports en commun, il y a deux lignes de RER (A et E) ainsi que neuf gares à moins de 10 minutes en voiture. On trouve une boulangerie, deux épiceries et une boucherie-charcuterie à proximité. Son prix de vente est de 498 000 €. N'hésitez pas à prendre contact avec Christophe MONTANIER (tél : 06-10-23-51-22) pour plus de renseignements sur cette maison. Maisons Balency Saint-Maur-des-Fossés vous accompagne dans tous vos projets immobiliers et dans toutes vos démarches.











