

- Prix
- 426 300 €
Maison neuve • Le Mesnil-Amelot (77)
- Nom et prix
- Terrain à bâtir () • 426 300 €
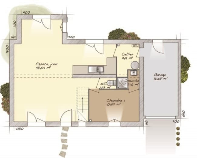
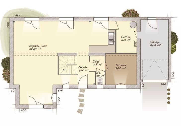
VENTE d'une maison F6 (114 m²) au Mesnil-Amelot PROCHE DE PARIS - MAISON 6 PIÈCES NEUVE À vendre : à côté du Transilien K (gare de Compans, 25 min de Paris), votre agence Maisons Balency Dammartin-en-Goële est ravie de vous présenter cette maison de 6 pièces de 114 m² au Mesnil-Amelot (77990). Cette maison possède 2 niveaux. Elle se divise en quatre chambres, une cuisine et deux salles de bains. La maison est neuve. Le terrain du bien s'étend sur 330 m². L'École Primaire Saint-Exupéry est implantée à moins de 10 minutes à pied. Niveau transports en commun, il y a le RER B et D ainsi que 14 gares à moins de 10 minutes en voiture. On trouve une bibliothèque, un tennis, des commerces, des boulangeries et une épicerie à proximité de la maison. Son prix de vente est de 426 300 €. N'hésitez pas à prendre contact avec Sébastien DARTEVELLE (06-24-63-58-60) pour obtenir de plus amples renseignements sur la maison. Maisons Balency Dammartin-en-Goële est là pour vous accompagner à toutes les étapes de l'achat.













