

- Prix
- 152 816 €
Maison neuve • LEUDEVILLE (91)
- Nom et prix
- Projet de construction d'une maison 87 m² avec terrain à LEUDEVILLE (91) • 152 816 €
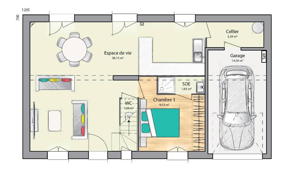
A LEUDEVILLE sur un terrain de 381 m², MAISONS SESAME vous propose de réaliser cette maison neuve d'une surface de 87 m² habitables avec 4 chambres. Le modèle ATRIA 90 GI est une maison à étage de 87 m², avec un garage intégré, offrant un espace de vie optimisé et agréable. Le rez-de-chaussée comprend un séjour lumineux, ouvert sur une cuisine fonctionnelle, créant un espace de vie convivial et fluide. Ce niveau dispose également d’un WC séparé, maximisant l’utilisation de chaque mètre carré. À l'étage, vous trouverez 4 chambres spacieuses, ainsi qu'une salle de bains, offrant un confort optimal pour toute la famille. Le modèle ATRIA 90 GI allie confort, praticité et espace, avec l'ajout d’un garage, répondant ainsi aux besoins d’une famille moderne. MAISONS SÉSAME vous propose les prestations suivantes : - Plans des maisons modulables et adaptables selon vos besoins et les spécificités de votre terrain - Large choix de systèmes de chauffage performants et économes en énergie - Sélection de matériaux de qualité garantissant confort et durabilité - Accompagnement sur-mesure pour la recherche et l’acquisition de votre terrain - Construction conforme à la réglementation en vigueur et à la norme RE2020 - Maisons certifiées NF HABITAT, gage de qualité, de performance et de confort Informations du terrain : Idéalement situé dans la commune, à seulement 2 min à pied des écoles. Demandez une étude gratuite et personnalisée de votre projet de construction ! Étude gratuite de votre projet de construction ! De nombreux terrains disponibles dans votre secteur. Informations légales : Maisons Sésame, constructeur de maisons individuelles, propose une sélection de terrains en collaboration avec ses partenaires fonciers, sous réserve de disponibilité. Il n’agit pas en tant que mandataire pour la vente de ces terrains. Nos maisons, certifiées NF Habitat et conformes à la réglementation thermique en vigueur, vous garantissent un habitat durable et économe en énergie. Découvrez un large choix de modèles adaptés aux besoins de toute la famille. Informations tarifaires : Les prix indiqués sont donnés à titre indicatif et n’incluent pas les frais de notaire. Les visuels et prix présentés sont non contractuels. Pour plus de détails, consultez nos conditions en agence. N° ORIAS IOBSP 13007108 – RCS Versailles 388 827 426. Cette annonce a été créée et diffusée avec le logiciel VITAHOME. Contactez Benoit ORTIN au 06 11 90 69 47 ou au 01 69 05 14 14 (Maisons Sésame - Agence de Juvisy-sur-Orge).









