

- Prix
- 179 128 €
Maison neuve • RUE MARCEL ADAM (95)
- Nom et prix
- Projet de construction d'une maison 116 m² avec terrain à FREPILLON (95) • 179 128 €
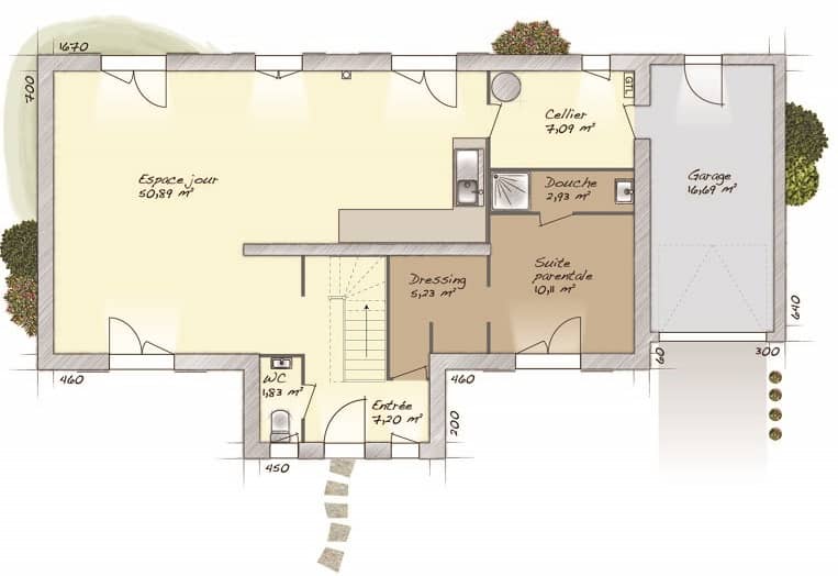
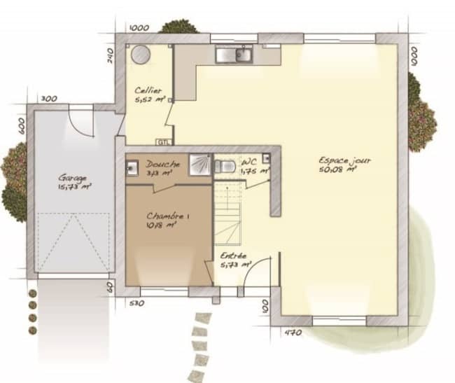
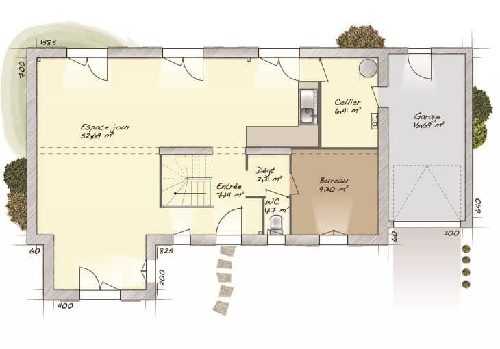
Baron Laurent Chargé de projet Maisons Sésame 06.62.38.41.09 Vous avez un projet de construction ? Je vous accompagne de A à Z pour concrétiser votre rêve immobilier avec Maisons Sésame A FREPILLON sur un terrain de 389 m², MAISONS SESAME vous propose de réaliser cette maison neuve d'une surface de 116 m² habitables avec 4 chambres. Le modèle ZIRCON 115 est une maison à combles aménagés de 116 m², offrant un espace de vie généreux et fonctionnel. Ce modèle comprend six pièces, dont quatre chambres, et est conçu pour maximiser chaque mètre carré afin d’offrir un confort optimal. Au rez-de-chaussée, le grand et lumineux séjour s’ouvre sur une cuisine en L, créant un espace convivial et fluide. Une chambre est également présente à ce niveau, ainsi qu’un WC, permettant une grande flexibilité d’utilisation. À l’étage, les trois chambres se partagent une grande salle de bains. Ce modèle peut également être accompagné d’un garage accolé, ajoutant un espace de stockage ou de stationnement pratique. Le modèle ZIRCON 115 combine ainsi confort, fonctionnalité et espace, pour répondre aux besoins d’une famille moderne. MAISONS SÉSAME vous propose les prestations suivantes : - Plans des maisons modulables et adaptables selon vos besoins et les spécificités de votre terrain - Large choix de systèmes de chauffage performants et économes en énergie - Sélection de matériaux de qualité garantissant confort et durabilité - Accompagnement sur-mesure pour la recherche et l’acquisition de votre terrain - Construction conforme à la réglementation en vigueur et à la norme RE2020 - Maisons certifiées NF HABITAT, gage de qualité, de performance et de confort Informations du terrain : Proche gare Ligne H paris gare du Nord Commerces et ecoles 10mn terrain plat viabilisé Demandez une étude gratuite et personnalisée de votre projet de construction ! Étude gratuite de votre projet de construction ! De nombreux terrains disponibles dans votre secteur. Informations légales : Maisons Sésame, constructeur de maisons individuelles, propose une sélection de terrains en collaboration avec ses partenaires fonciers, sous réserve de disponibilité. Il n’agit pas en tant que mandataire pour la vente de ces terrains. Nos maisons, certifiées NF Habitat et conformes à la réglementation thermique en vigueur, vous garantissent un habitat durable et économe en énergie. Découvrez un large choix de modèles adaptés aux besoins de toute la famille. Informations tarifaires : Les prix indiqués sont donnés à titre indicatif et n’incluent pas les frais annexes (frais de notaire, raccordements, etc.). Les visuels et prix présentés sont non contractuels. Pour plus de détails, consultez nos conditions en agence. N° ORIAS IOBSP 13007108 – RCS Versailles 388 867 426. Les informations sur les risques auxquels ce bien est exposé sont disponibles sur le site Géorisques : www.georisques.gouv.fr Cette annonce a été créée et diffusée avec le logiciel VITAHOME. Contactez Laurent BARON au 06 62 38 41 09 (Maisons Sésame - Agence de Cormeilles en Parisis).







