

- Prix
- 400 000 €
Maison neuve • RUE LOUIS XAVIER DE RICARD (94)
- Nom et prix
- Projet de construction d'une maison 130 m² avec terrain à FONTENAY-SOUS-BOIS (94) • 400 000 €
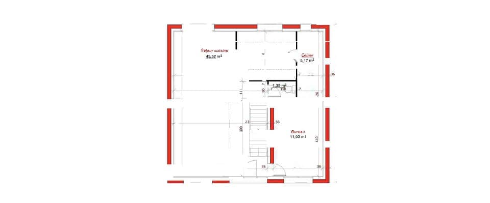
Maison neuve au style parisien avec toiture mansardée. Au rez-de-chaussée, salon lumineux avec cuisine ouverte Au 1er étage, deux chambres avec salle de bain douche à l'italienne et baignoire Au dernier niveau, une magnifique suite parentale avec dressing et salle de bain privative. Informations du terrain : Fontenay Village Maison au calme situé à 10 min à pied du RER A Fontenay sous Bois, stationnement, jardin plein sud sans vis a vis. Le Pavillon Français construit des maisons sur-mesure alliant design, caractère et qualité depuis plus de 30 ans. Chaque projet est unique : vous choisissez la configuration, les matériaux, les finitions… nous concrétisons votre vision. Nos constructions sont encadrées par le CCMI, un contrat garantissant un prix définitif et des délais de livraison précis. Grâce à notre certification NF Habitat, vous bénéficiez d’un haut niveau de confort, de performance et de durabilité. Avec un accompagnement personnalisé à chaque étape, nous faisons de votre maison un lieu unique qui vous ressemble. Faites confiance à un constructeur expérimenté, à l’écoute et engagé à vos côtés pour bâtir la maison de vos rêves. Construction aux normes RE2020. Prix avec assurance dommages-ouvrage comprise, hors VRD, terrain non viabilisé, frais de notaire non compris, frais divers non compris. Terrain sélectionné et vu pour vous sous réserve de disponibilité et au prix indiqué par notre partenaire foncier. Conditions et visuels non contractuels. Cette annonce a été créée et diffusée avec le logiciel VITAHOME. Contactez David BERTELLA au 06 62 38 80 55 (Le Pavillon Français - Agence de Rambouillet).












