

- Prix
- 320 274 €
Maison neuve • Esbly (77)
- Nom et prix
- Terrain à bâtir Esbly (77450) • 320 274 €
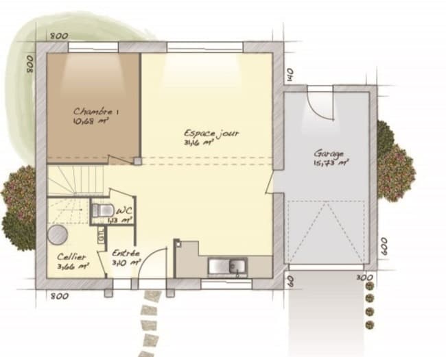
VENTE : maison F7 (102 m²) à Esbly MAISON 7 PIÈCES NEUVE - PROCHE DE MONTREUIL En vente : au pied de la gare, nous vous proposons cette maison de 7 pièces de 102 m² et de 400 m² de terrain à Esbly (77450). Cette maison possède 2 niveaux. Son intérieur compte cinq chambres, une cuisine et deux salles de bains. Cette maison est neuve. L'École Élémentaire du Centre, l'École Maternelle les Couleurs et le Collège Louis Braille sont implantés à moins de 10 minutes à pied, tout comme deux structures d'accueil pour les tout-petits. Niveau transports en commun, on trouve la gare Esbly dans les environs, plaçant Paris à 30 min de la propriété en transilien. Il y a un tennis, des commerces, trois boulangeries, un supermarché, un bureau de poste et deux épiceries à proximité du bien. Elle est proposée à l'achat pour 320 274 €. Contactez Sébastien DARTEVELLE (tél : 06-24-63-58-60) pour toute question sur la maison. Donnez vie à vos projets immobiliers avec Maisons Balency Dammartin-en-Goële.











