

- Prix
- 610 500 €
Maison neuve • Chessy (77)
- Nom et prix
- Terrain à bâtir () • 610 500 €
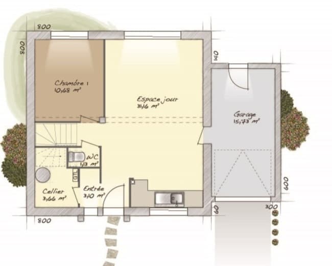
VENTE d'une maison T6 (98 m²) à Chessy PROCHE DE PARIS - MAISON 6 PIÈCES NEUVE À quelques minutes du RER A (station Val d'Europe, 30 min de Paris), nous vous proposons cette maison de 6 pièces de 98 m² et de 600 m² de terrain à Chessy (77700). Elle comporte quatre chambres, une cuisine et une salle de bains. C'est une maison de 2 niveaux. Elle est neuve. L'École Primaire Cornelius et l'École Primaire Gaius sont implantées à moins de 10 minutes à pied, tout comme une crèche. Côté transports, on trouve la ligne de RER A (Chessy-Marne-La-Vallée) ainsi que sept gares à moins de 10 minutes en voiture. Il y a deux tennis, des commerces, une boulangerie, deux épiceries et une boucherie-charcuterie à proximité du bien. Son prix de vente est de 610 500 €. Prenez contact avec notre agence (Sébastien DARTEVELLE : 06-24-63-58-60) pour plus d'informations sur la maison ou sur les démarches à suivre.