

- Prix
- 316 800 €
Maison neuve • Souppes-sur-Loing (77)
- Nom et prix
- Terrain à bâtir Souppes-sur-Loing (77460) • 316 800 €
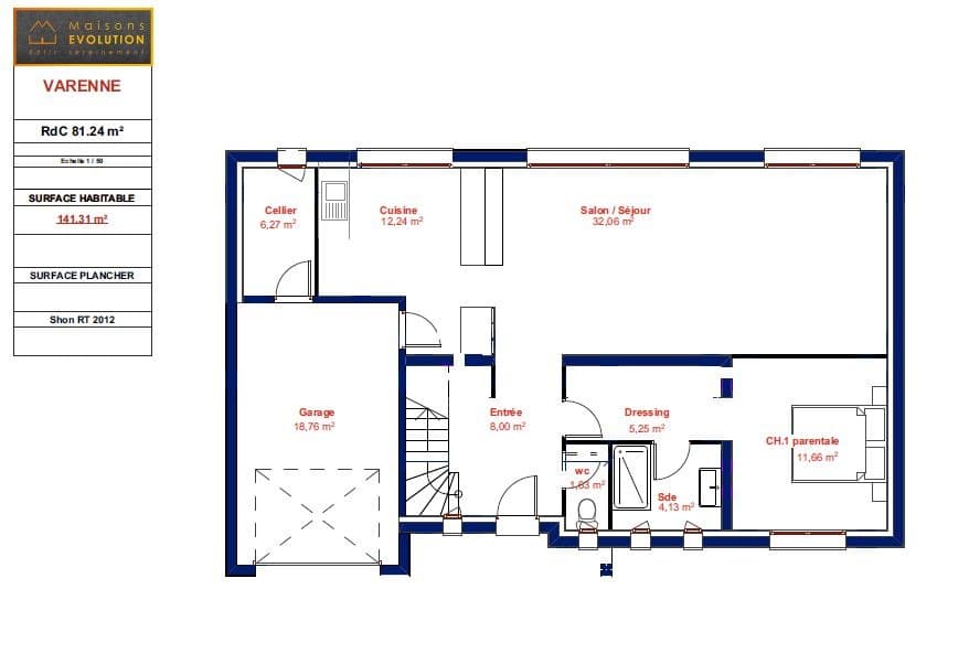
Venez construire avec Franck de Maisons Evolution 07/66/67/97/06 votre maison moderne d'une superficie de 141m² avec garage intégré composée, d'une grande pièce de vie spacieuse avec cuisine ouverte, une chambre parentale, un cellier et un WC, au Rez-de-chaussée et à l'étage, 4 grandes chambres, une salle de bain principale un WC indépendant. Le tout sur un terrain de 643m². Pour plus de renseignements sur cette annonce contacter Franck au 07/66/67/97/06. (Terrain fournis par nos partenaires fonciers, sous réserves de disponibilités. Photos non contractuelles. Prix Hors frais de notaire).