

- Prix
- 449 330 €
Maison neuve • Épinay-sur-Orge (91)
- Nom et prix
- Terrain à bâtir () • 449 330 €
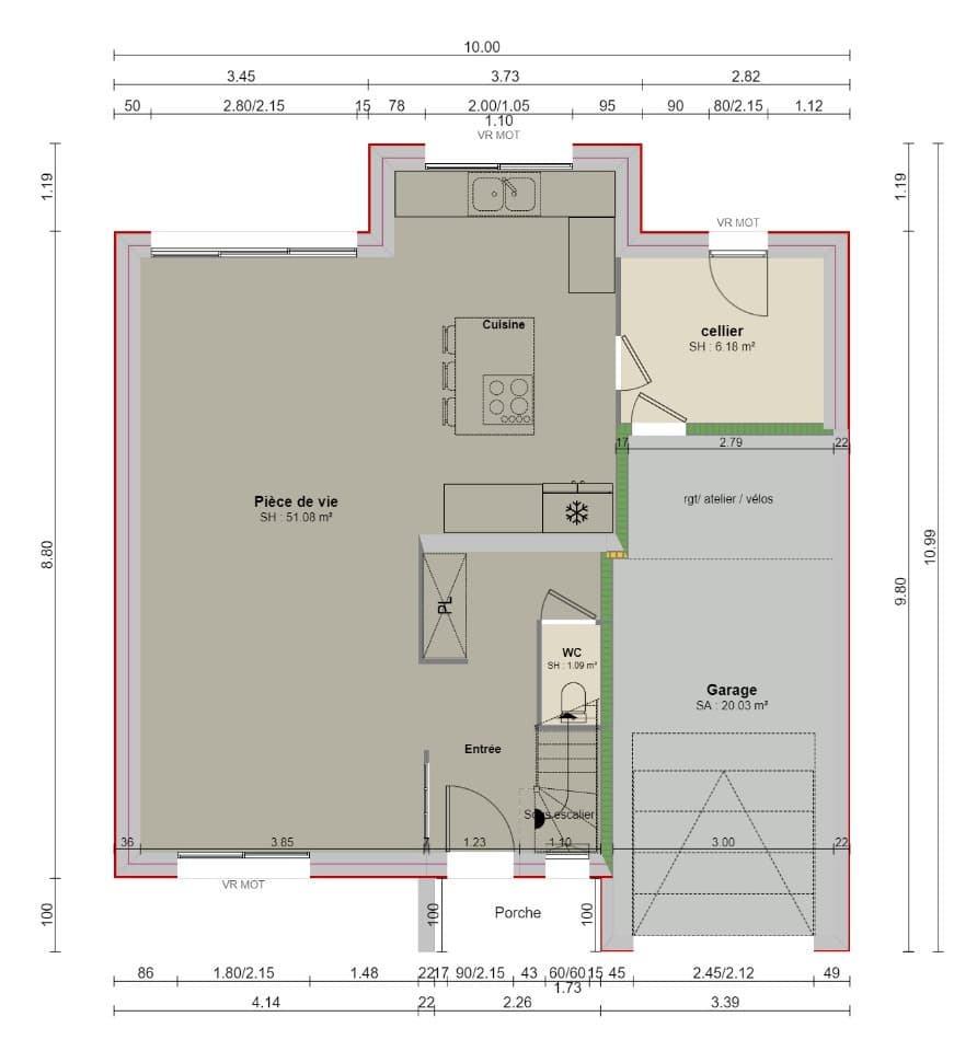
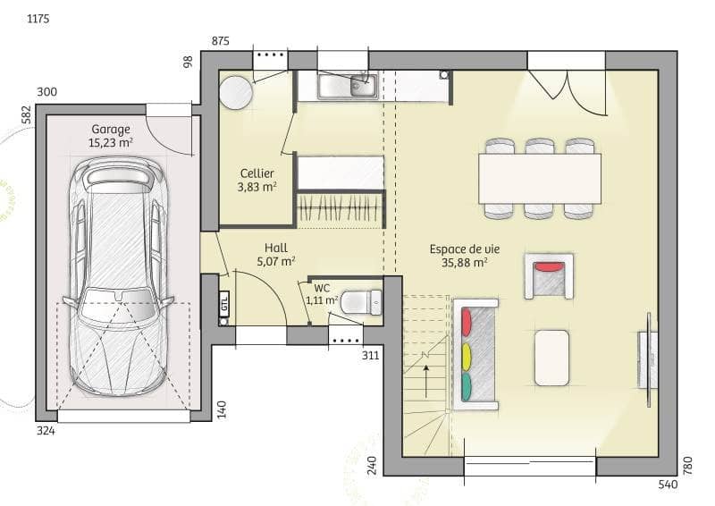
VENTE d'une maison NEUVE de 5 pièces (124 m² +GARAGE) à Épinay-sur-Orge CENTRE-VILLE - En vente : proche du RER C (15 min de Paris) et TRAM T12 (Massy ou Evry 17 mn env), votre agence Maisons Balency La Ville-du-Bois est heureuse de vous présenter cette maison de 5 pièces de 124 m² + Garage 20 m2 soit 144 m2 utiles sur un magnifique terrain clos de 330 m² env dans le centre-ville d'Épinay-sur-Orge (91360). Ecole primaire et maternelle Paul valéry à 5 mn a pieds Commerce a deux pas ou centre commerciaux carrefour à 5 mn en voiture Maison contemporaine avec 4 chambres dont une suite parentale, Son intérieur est très lumineux avec de grandes baies vitrées qui éclairent la pièce de vie de plus de 50 m2, cellier 2 salle de bains, 2 wc Cette maison possède 2 niveaux et il est possible de prévoir en option un grenier aménageable pour y réaliser plus tard des combles pour une 5e chambre ou bureau ou salle de jeux / sports. Son prix de vente est de 449 330 €. ( hors frais de notaires prévoir env 16500€, hors décoration, revêtements et adaptations aux sols éventuelles), branchements raccordements, enlèvements des terres compris Tous nos plans sont personnalisables sur mesure Maison à très basse consommation, Réalisation en brique de terre cuite, isolation intérieure renforcée bio ressourcée, pompe à chaleur, plancher chauffant, domotique... toutes assurances comprises ' dommage ouvrage'... Contactez votre conseiller Jean Jacques des maisons BALENCY agence de la ville du bois au 07 77 16 46 73 ou au 01 64 49 21 13










