

- Prix
- 795 000 €
Maison neuve • Fontenay-sous-Bois (94)
- Nom et prix
- Terrain à bâtir () • 795 000 €
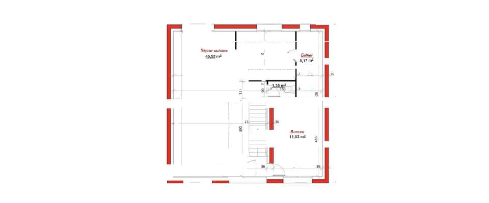
Maison de 7 pièces (152 m²) en vente à Fontenay-sous-Bois MAISON 7 PIÈCES NEUVE En vente : à côté du RER A (5 min de Paris), nous sommes ravis de vous présenter cette maison de 7 pièces de 152 m² et de 400 m² de terrain à Fontenay-sous-Bois (94120). C'est une maison de 2 niveaux. Son intérieur est composé de quatre chambres, d'une cuisine et de deux salles de bains. La maison est neuve. Des établissements scolaires de tous types (de la maternelle au lycée) sont implantés à moins de 10 minutes à pied, tout comme six crèches. Niveau transports, on trouve la station de RER Fontenay-Sous-Bois (ligne A) juste à côté. Il y a une bibliothèque, un bowling, un tennis, un bassin de natation, des commerces, des boulangeries, deux supermarchés, un bureau de poste et des supérettes à quelques minutes de la maison. Le marché Place Moreau David a lieu tous les dimanches matin. Son prix de vente est de 795 000 €. Contactez notre agence (Franck THAREAU : 01-48-81-08-79) pour obtenir de plus amples renseignements sur cette maison, sur les démarches à suivre ou sur les modalités de vente. Maisons Berval Le Perreux-sur-Marne vous accompagne à toutes les étapes de votre projet et dans tous vos projets immobiliers.










