

- Prix
- 306 000 €
Maison neuve • Béziers (34)
- Nom et prix
- Terrain à bâtir () • 306 000 €
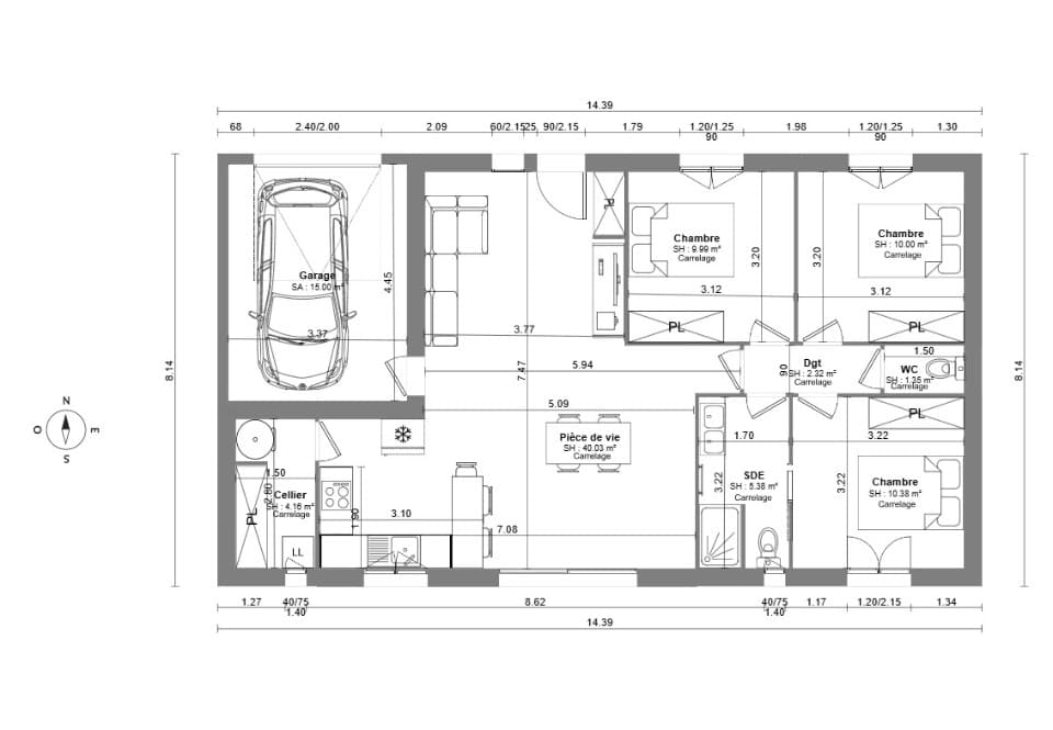
PROJET DE CONSTRUCTION - Maison de 4 pièces (85 m²) à Béziers MAISON 4 PIÈCES À 13 km de la côte méditerranéenne, votre agence Maisons France Confort Béziers est ravie de vous présenter cette maison de 4 pièces de plain-pied de 85 m² en vente à Béziers (34500). Conçue de plain-pied, elle se divise en trois chambres, une cuisine, un cellier, une salle de bains et un garage. Le terrain de la maison est de 760 m². (Carrelage inclus dans toutes les pièces / Raccordements inclus). On trouve des écoles de tous types (de la maternelle au lycée) à moins de 10 minutes à pied, tout comme une crèche. Niveau transports en commun, il y a la gare Béziers à moins de 10 minutes en voiture. Les autoroutes A75 et A9 sont accessibles à moins de 4 km. On trouve un bassin de natation, une bibliothèque, des commerces, des boulangeries, un bureau de poste, deux épiceries et une poissonnerie à proximité. Son prix de vente est de 306 000 €. Pour plus d'information contacter (Anthony BALLESTER : 06.27.21.51.55) Maisons France Confort Béziers pour échanger sur votre projet et réaliser une étude gratuite. (Plan personnalisable). Tous nos ouvrages sont réalisés sur-mesure en fonction de vos attentes et de nos échanges avec vous ainsi que dans le respect de la règlementation RE 2020. Ce projet comporte les garanties suivantes: Contrat de construction CCMI. Dommage/Ouvrage. RC Garantie décennale. Parfaite achèvement. Etude de sol G2. Prix et délais convenu. Garantie financière Pour votre tranquillité nous nous occupons de toutes les formalités administratives.