

- Prix
- 291 274 €
Maison neuve • Saint-Pathus (77)
- Nom et prix
- Terrain à bâtir Saint-Pathus (77178) • 291 274 €
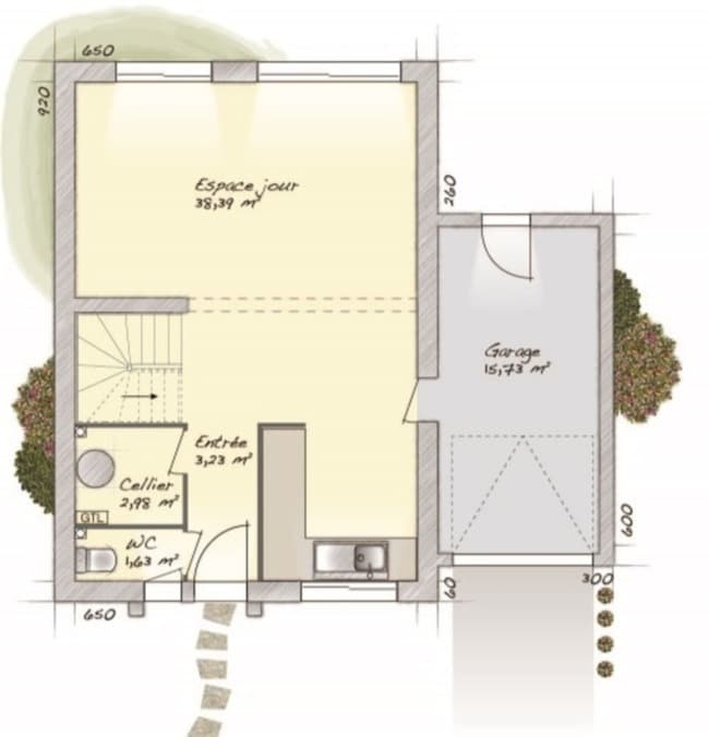
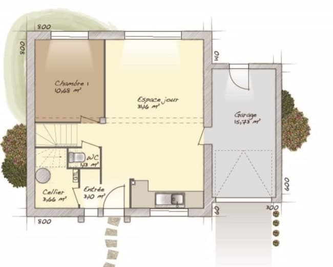
VENTE : maison T5 (90 m²) à Saint-Pathus PROCHE D'AULNAY-SOUS-BOIS - MAISON 5 PIÈCES NEUVE À vendre : à proximité de la gare du Plessis-Belleville (Paris à 35 min par le Transilien K), à Saint-Pathus (77178), nous vous présentons cette maison de 5 pièces de 90 m² et de 250 m² de terrain. Elle est composée de trois chambres, d'une cuisine et d'une salle de bains. C'est une maison de 2 niveaux. Elle est neuve. Il y a le Collège Jean des Barres à moins de 10 minutes à pied. Côté transports, on trouve les gares Le Plessis-Belleville, Nanteuil-le-Haudouin et Dammartin-Juilly-Saint-Mard à moins de 10 minutes en voiture. On trouve deux tennis, un commerce et une épicerie à proximité. Elle est à vendre pour la somme de 291 274 €. Contactez Sébastien DARTEVELLE (tél : 06-24-63-58-60) pour toute question sur cette maison ou sur les modalités de vente. Maisons Balency Dammartin-en-Goële est là pour vous accompagner à toutes les étapes de l'achat.











