

- Prix
- 295 274 €
Maison neuve • Oissery (77)
- Nom et prix
- Terrain à bâtir () • 295 274 €
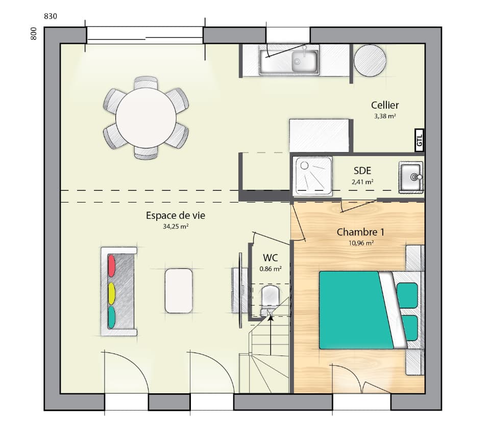
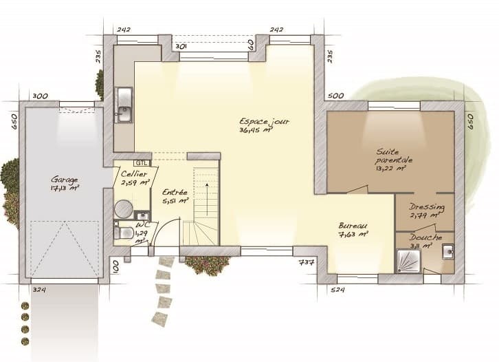
Oissery : maison T7 (102 m²) en vente PROCHE D'AULNAY-SOUS-BOIS - MAISON 7 PIÈCES NEUVE À vendre : à côté de la gare du Plessis-Belleville (Paris à 35 min avec le Transilien K), votre agence Maisons Balency Dammartin-en-Goële est heureuse de vous proposer à Oissery (77178), cette maison de 7 pièces de 102 m² et de 250 m² de terrain. Son intérieur se divise en cinq chambres, une cuisine et deux salles de bains. C'est une maison de 2 niveaux. Elle est neuve. Il y a le Collège Jean des Barres à moins de 10 minutes à pied. Niveau transports en commun, on trouve trois gares (Le Plessis-Belleville, Nanteuil-le-Haudouin et Dammartin-Juilly-Saint-Mard) à moins de 10 minutes en voiture. On trouve deux tennis, un commerce et une épicerie dans les environs. Son prix de vente est de 295 274 €. Contactez notre constructeur (DARTEVELLE Sébastien : 06-24-63-58-60) pour tout renseignement sur la maison. Maisons Balency Dammartin-en-Goële est là pour vous accompagner dans toutes vos démarches.












