

- Prix
- 795 000 €
Maison neuve • Noisy-le-Grand (93)
- Nom et prix
- Terrain à bâtir Noisy-le-Grand (93160) • 795 000 €
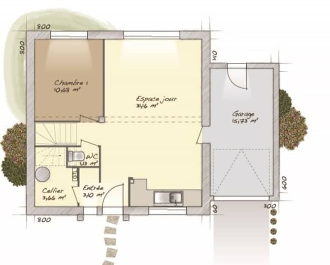
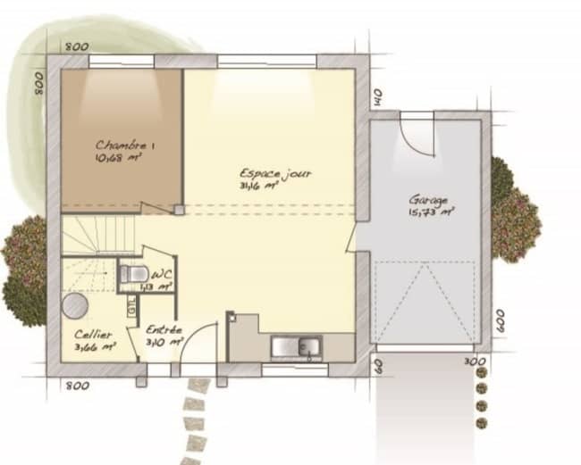
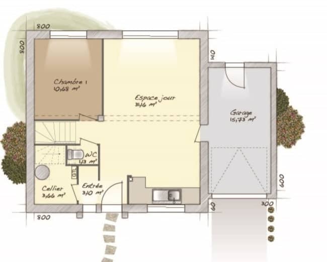
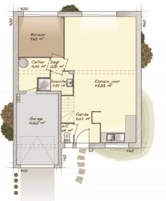
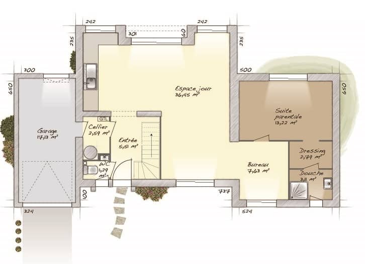
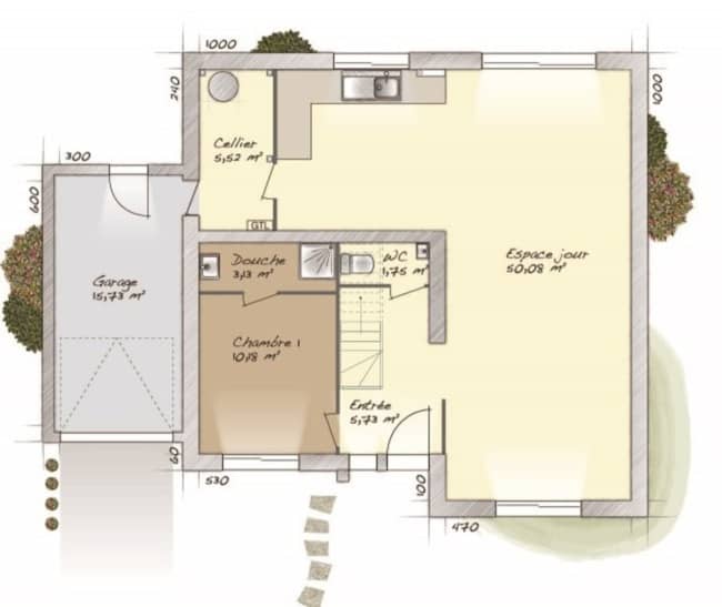
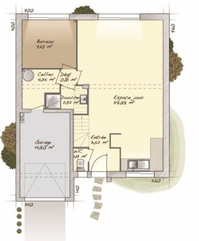
Noisy Le Grand Maison mansart conçue pour y vivre au rdc si besoin puisqu'elle dispose d'une chambre et de sa salle d'eau. Construction disposant des nouvelles réglementations RE 2020 et certifiée NF Habitat HQE. Emplacement privilégié au sein d'un quartier pavillonnaire proche des commodités. 15min a pied gare Noisy mont d'est. Moins de 5min à pied des Bords de Marne, moins de 10minutes à pied du centre ville. Superficie du terrain 358m2. Berval réalise des projets de standing et sur mesure. Pour toute demande veuillez contacter le 06.41.56.29.99 Emplacement privilégié au sein d'un quartier pavillonnaire proche des commodités. 15min a pied gare Noisy mont d'est. Moins de 5min à pied des Bords de Marne, moins de 10minutes à pied du centre ville. Superficie du terrain 358m2. Berval réalise des projets de standing et sur mesure. Pour toute demande veuillez contacter le 06.41.56.29.99











