

- Prix
- 449 999 €
Maison neuve • Pontault-Combault (77)
- Nom et prix
- Terrain à bâtir Pontault-Combault (77340) • 449 999 €
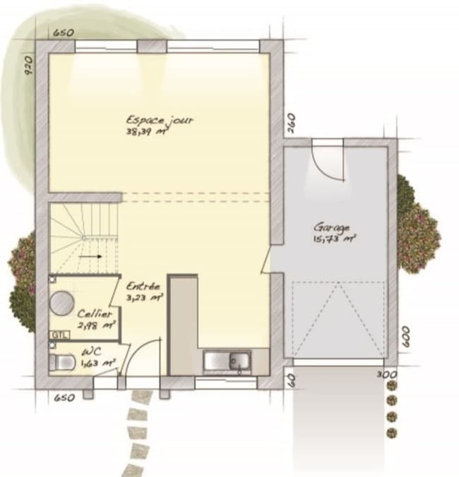
Beau projet de construction à Pontault Combault , sur un terrain d'une superficie de 399 m², à partir de 449 999€ terrain+maison avec notre maison ETG GI, l'ambiance est au charme et à l'élégance, pour une maison aux finitions délicates. Ce modèle ETG GI de 83 m² est composé de 3 chambres à l'étage avec dressing et d'une salle de bains, au rez-de-chaussée d'un espace vie de 30 m² et d'un garage intégré. Pour plus d'information n'hésitez pas à contacter Louis, Maisons Balency au 06/48/34/25/29. Photos non contractuelles, terrain proposé par un partenaire foncier sous réserve de disponibilité et autorisation de publicité. Maison proposée Hors papiers peints, peintures, revêtement de sol dans les chambres. Tarif modifiable sans préavis. Etiquette énergie: A. Différents modèles disponibles pour ce terrain. Assurances et garanties du constructeur (RC professionnelle, décennale, dommage ouvrage, garantie de remboursement de l'acompte, livraison à prix et délai convenu).










