
Maison neuve • BOISSETTES (77)
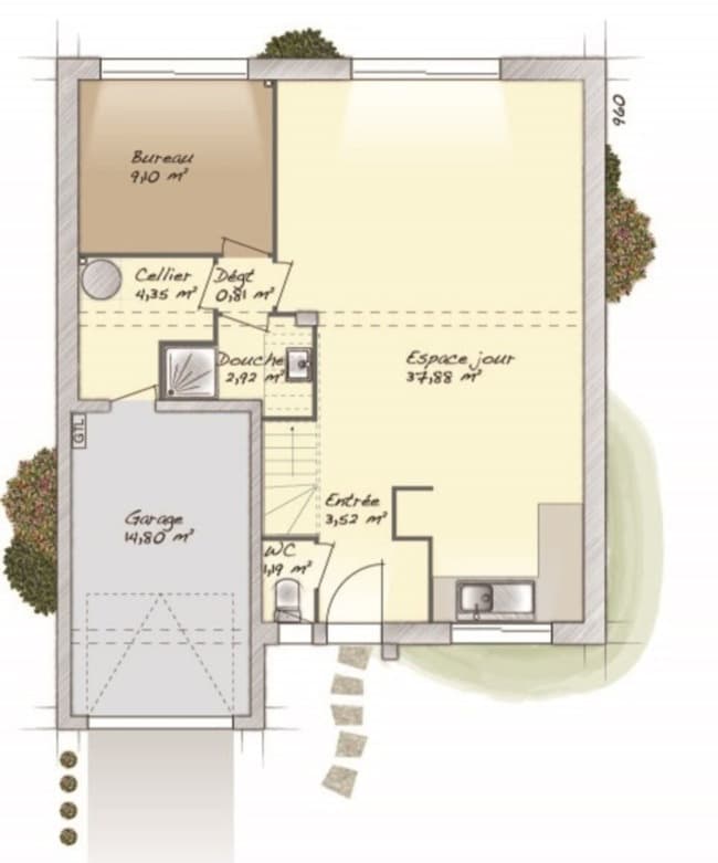
LAURIANE 06/33/15/39/30 LE PAVILLON FRANCAIS , vous propose de réaliser votre maison entièrement sur-mesure, d'architecture contemporaine, moderne ou traditionnelle, sur ce terrain d'une superficie de ....... descriptif de qualité, maison labellisée NF conforme à la RE2020, bio brique en terre cuite, LARGE CHOIX DE MATERIAUX: tuiles en terre cuite, carrelage, portes intérieures , finition soignée. Terrain proposé par notre partenaire foncier, sous réserve de disponibilité. Le Pavillon Français construit des maisons sur-mesure alliant design, caractère et qualité depuis plus de 30 ans. Chaque projet est unique : vous choisissez la configuration, les matériaux, les finitions… nous concrétisons votre vision. Nos constructions sont encadrées par le CCMI, un contrat garantissant un prix définitif et des délais de livraison précis. Grâce à notre certification NF Habitat, vous bénéficiez d’un haut niveau de confort, de performance et de durabilité. Avec un accompagnement personnalisé à chaque étape, nous faisons de votre maison un lieu unique qui vous ressemble. Faites confiance à un constructeur expérimenté, à l’écoute et engagé à vos côtés pour bâtir la maison de vos rêves. Construction aux normes RE2020. Prix avec assurance dommages-ouvrage comprise, hors VRD, terrain viabilisé, frais de notaire non compris, frais divers non compris. Terrain sélectionné et vu pour vous sous réserve de disponibilité et au prix indiqué par notre partenaire foncier. Conditions et visuels non contractuels. Cette annonce a été créée et diffusée avec le logiciel VITAHOME. Contactez Lauriane ASSELIE au 06 33 15 39 30 (Le Pavillon Français - Agence d'Ozoir-la-ferrière).
Proposé par LE PAVILLON FRANÇAIS








