

- Prix
- 408 000 €
Maison neuve • Saint-Vrain (91)
- Nom et prix
- Terrain à bâtir Saint-Vrain (91770) • 408 000 €
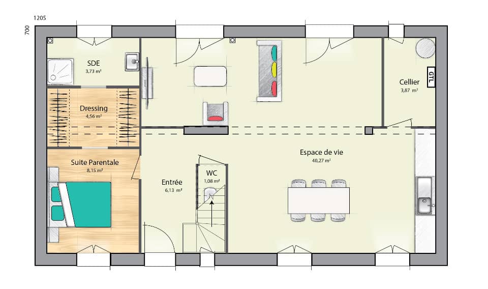
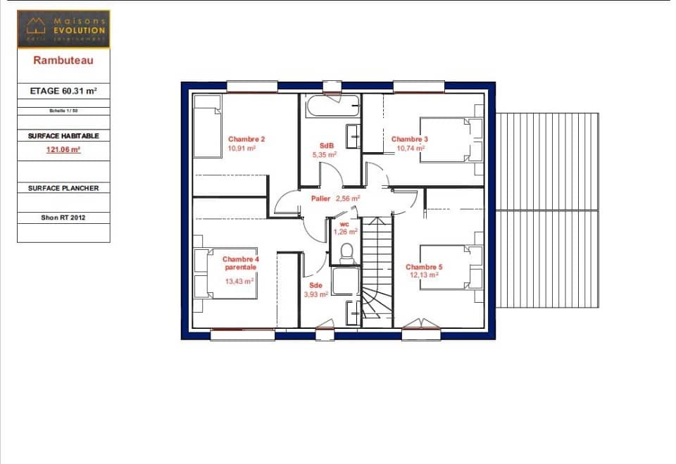
Saint-Vrain en Île de France (91770), pour 408 000 € tout compris : Superbe Maison de 100 m² en R+COMBLES, constructible à proximité du RER C, sur un très beau terrain de 731 m² ! Découvrez ce charmant modèle de maison respectant les normes RE2020, idéalement situé au coeur de l'Essonne. Réalisable sur un terrain profond de 40 mètres et offrant une façade constructible de 14,63 mètres, ce bien saura répondre à toutes vos attentes. Situé à seulement 8 minutes à pied d'une école et à 10 minutes des commerces, ce pavillon est parfait pour une famille en quête de confort et de commodité. Les transports sont également facilités grâce à la gare de Bouray-Lardy, desservant le RER C, qui permet de rejoindre Paris en seulement 40 minutes. Que vous cherchiez à investir, à offrir un cadre de vie agréable à votre famille ou à profiter d'une retraite paisible, cette parcelle est faite pour vous. Dans notre agence d'Ormoy des Maisons Balency, spécifiquement, nous vous proposons des réalisations totalement sur-mesure, conceptualisées avec soin. Nous pouvons également adapter nos modèles existants pour répondre à vos besoins spécifiques. Que vous soyez un jeune couple, une famille nombreuse ou des jeunes retraités, nous nous adaptons à tous les profils pour créer la maison de vos rêves. N'hésitez pas à nous contacter au 06 49 43 56 27 pour lancer une recherche foncière gratuite et débuter votre projet de construction. Laissez-nous vous accompagner dans la réalisation de votre future demeure en Île de France !











