

- Prix
- 165 606 €
Maison neuve • MOISENAY (77)
- Nom et prix
- Projet de construction d'une maison 97 m² avec terrain à MOISENAY (77) • 165 606 €
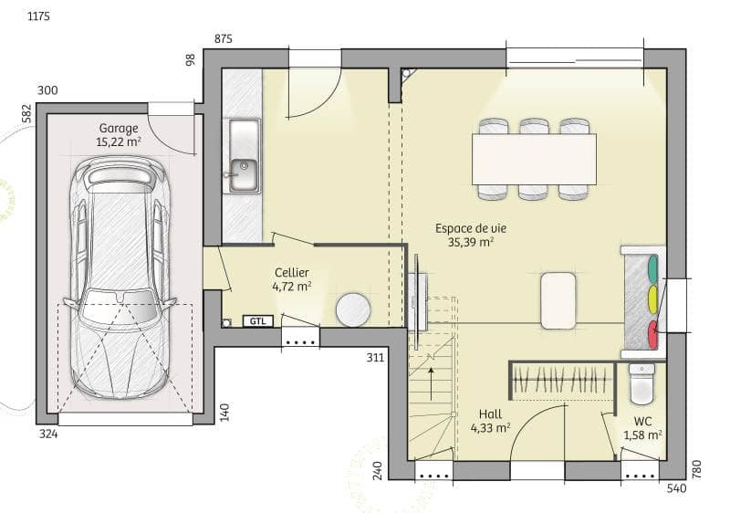
A MOISENAY sur un terrain de 539 m², MAISONS SESAME vous propose de réaliser cette maison neuve d'une surface de 97 m² habitables avec 4 chambres. Le modèle JADE 100 est une maison à étage de 97 m², offrant un agencement optimal pour une vie familiale confortable. Son garage intégré, avec une avancée subtile, lui confère un design élégant et fonctionnel. Au rez-de-chaussée, vous trouverez un grand séjour lumineux, ouvert sur une cuisine moderne et pratique, créant un espace de vie convivial et fluide. Ce niveau comprend également une salle de bains et un WC séparé, assurant praticité et confort. À l’étage, les quatre chambres sont spacieuses, idéales pour accueillir toute la famille. Ce modèle combine parfaitement espace, fonctionnalité et design raffiné, répondant aux besoins de nombreuses familles. MAISONS SÉSAME vous propose les prestations suivantes : - Plans des maisons modulables et adaptables selon vos besoins et les spécificités de votre terrain - Large choix de systèmes de chauffage performants et économes en énergie - Sélection de matériaux de qualité garantissant confort et durabilité - Accompagnement sur-mesure pour la recherche et l’acquisition de votre terrain - Construction conforme à la réglementation en vigueur et à la norme RE2020 - Maisons certifiées NF HABITAT, gage de qualité, de performance et de confort Proche de l école, des services et des commerces accessibles à pied, ce nouveau lieu de vie vous offre un environnement calme et préservé ; idéal pour accueillir votre future maison et construire votre avenir. Demandez une étude gratuite et personnalisée de votre projet de construction ! Étude gratuite de votre projet de construction ! De nombreux terrains disponibles dans votre secteur. Informations légales : Maisons Sésame, constructeur de maisons individuelles, propose une sélection de terrains en collaboration avec ses partenaires fonciers, sous réserve de disponibilité. Il n’agit pas en tant que mandataire pour la vente de ces terrains. Nos maisons, certifiées NF Habitat et conformes à la réglementation thermique en vigueur, vous garantissent un habitat durable et économe en énergie. Découvrez un large choix de modèles adaptés aux besoins de toute la famille. Informations tarifaires : Les prix indiqués sont donnés à titre indicatif et n’incluent pas les frais annexes (frais de notaire, raccordements, etc.). Les visuels et prix présentés sont non contractuels. Pour plus de détails, consultez nos conditions en agence. N° ORIAS IOBSP 13007108 – RCS Versailles 388 867 426. Les informations sur les risques auxquels ce bien est exposé sont disponibles sur le site Géorisques : www.georisques.gouv.fr Cette annonce a été créée et diffusée avec le logiciel VITAHOME. Contactez José FERREIRA au 06 75 62 11 75 ou au 01 64 79 14 14 (Maisons Sésame - Agence de Dammarie-les-Lys).












